神戸ハウスの賃貸情報
11/05神戸ハウスの賃貸情報
11/05
神戸ハウスの総合評価
総合評価
3
3
| セキュリティ | : |
築年数 | : |
| 建物設備 | : |
駅徒歩 | : |
| セキュリティ: | |
| 建物設備: | |
| 築年数: | |
| 駅徒歩: |
この物件について
| 物件名 | 神戸ハウス | ||
|---|---|---|---|
| 住所 | 東京都文京区小日向2-10-15 | ||
| 最寄駅 |
東京メトロ有楽町線 江戸川橋駅 徒歩6分 東京メトロ丸ノ内線 茗荷谷駅 徒歩8分 東京メトロ東西線 神楽坂駅 徒歩15分 |
||
| 学区 | 小日向台町小学校 | ||
| 構造 | 木造 | 総階数 | 地上2階建て |
| 賃料 | 580,000円~630,000円 | 管理費 | 0円 |
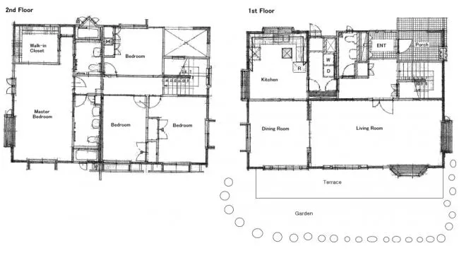
| 間取り | 4LDK | 面積 | 183.00㎡ |
| 駐車場 | 平置き専用駐車場 | 築年月 | 1984年02月 |
| 問合番号 | 08163 | 更新日 | 2015/11/05 |
| 設備 | バイク置場有、駐車場有、駐輪場有、CATV、小日向台町小学校エリア、コンロ二口以上、ガスキッチン、システムキッチン、エアコン、フローリング、独立洗面台、バストイレ別、室内洗濯機置場、収納、2人入居可、法人契約相談可 | ||
| 備考 | 【神戸ハウス】の賃貸住宅情報! 詳細閲覧ありがとうございます。最新の空室の確認、内覧のご予約はメール・電話にてお問い合わせください。 文京区の賃貸マンション・賃貸アパートはベステックスにおまかせください! | ||
物件概要
文京区小日向2丁目の閑静な住宅街に佇む戸建賃貸物件【神戸ハウス】
のご紹介です☆
1984年築2階建て木造造り。
東京メトロ丸ノ内線「茗荷谷駅」から徒歩8分、有楽町線江戸川橋駅徒歩6分、東西線神楽坂駅徒歩15分の好立地。
小日向の高級住宅街で、周辺は落ち着いた閑静な住宅街☆
住環境抜群で、都心にいるとは思えない居心地の良さが味わえます☆
平置駐車場も御座いますので、車をお持ちの方や
お子様のいらっしゃるファミリーの方には最適な物件☆
憧れの庭付き一戸建てを賃貸で♪
≪神戸ハウスの周辺環境≫
茗荷谷駅周辺には再開発タワーマンション店舗部分にスーパー「サントク」、「しまむら」が営業をしております。
その他、24時間営業のスーパー「マルエツプチ」やレストラン「ジョナサン」など
お買い物やお食事に便利な施設があります。
播磨坂や教育の森公園といった、緑の多い環境も御座いますので、休日の散歩にもオススメです☆
通勤通学、お買い物にも便利な立地です。
是非ご覧下さい!
のご紹介です☆
1984年築2階建て木造造り。
東京メトロ丸ノ内線「茗荷谷駅」から徒歩8分、有楽町線江戸川橋駅徒歩6分、東西線神楽坂駅徒歩15分の好立地。
小日向の高級住宅街で、周辺は落ち着いた閑静な住宅街☆
住環境抜群で、都心にいるとは思えない居心地の良さが味わえます☆
平置駐車場も御座いますので、車をお持ちの方や
お子様のいらっしゃるファミリーの方には最適な物件☆
憧れの庭付き一戸建てを賃貸で♪
≪神戸ハウスの周辺環境≫
茗荷谷駅周辺には再開発タワーマンション店舗部分にスーパー「サントク」、「しまむら」が営業をしております。
その他、24時間営業のスーパー「マルエツプチ」やレストラン「ジョナサン」など
お買い物やお食事に便利な施設があります。
播磨坂や教育の森公園といった、緑の多い環境も御座いますので、休日の散歩にもオススメです☆
通勤通学、お買い物にも便利な立地です。
是非ご覧下さい!
掲載情報について
※随時更新を心がけておりますが、掲載している物件が万が一成約している場合もございますので予めご了承下さいませ。
※駐車場・駐輪場・バイク置場の空き状況についてはお問い合わせ下さい。
※ペット飼育やSOHO利用・楽器使用の可否に関しては、建物の管理規約で可能になっていても、お部屋の所有者様によって禁止の場合もございますので御注意下さい。
詳細はメールやお電話にてスタッフまでご相談下さい。
※駐車場・駐輪場・バイク置場の空き状況についてはお問い合わせ下さい。
※ペット飼育やSOHO利用・楽器使用の可否に関しては、建物の管理規約で可能になっていても、お部屋の所有者様によって禁止の場合もございますので御注意下さい。
詳細はメールやお電話にてスタッフまでご相談下さい。
神戸ハウスの周辺地図
神戸ハウスのご成約済み部屋一覧
| 所在階 | 間取り | 面積 | 賃料 | 管理費 | 敷金 | 礼金 | お問い合わせ | ||||
|---|---|---|---|---|---|---|---|---|---|---|---|
| 1階 | 4LDK | 183.00㎡ | … | … | … | … | 契約済み | 所在階*** 間取り4LDK |
面積183.00㎡ 管理費*** |
敷金*** 礼金*** |
契約済み |
| 1階 | 4LDK | 183.00㎡ | … | … | … | … | 契約済み | 所在階*** 間取り4LDK |
面積183.00㎡ 管理費*** |
敷金*** 礼金*** |
契約済み |
