プリメール弥生の賃貸情報
07/14プリメール弥生の賃貸情報
07/14
プリメール弥生の総合評価
総合評価
3
3
| セキュリティ | : |
築年数 | : |
| 建物設備 | : |
駅徒歩 | : |
| セキュリティ: | |
| 建物設備: | |
| 築年数: | |
| 駅徒歩: |
この物件について
| 物件名 | プリメール弥生 | ||
|---|---|---|---|
| 住所 | 東京都文京区弥生2-7-14 | ||
| 最寄駅 |
東京メトロ千代田線 根津駅 徒歩4分 東京メトロ千代田線 千駄木駅 徒歩8分 東京メトロ南北線 東大前駅 徒歩15分 |
||
| 学区 | |||
| 構造 | RC | 総階数 | 地上5階建て |
| 賃料 | 175,000円~230,000円 | 管理費 | 0円~10,000円 |
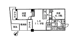
| 間取り | 2LDK~2SLDK | 面積 | 59.74㎡~81.65㎡ |
| 駐車場 | 築年月 | 1996年03月 | |
| 問合番号 | 67897 | 更新日 | 2016/07/14 |
| 設備 | オートロック、エレベーター、コンロ二口以上、システムキッチン、エアコン、追い焚き機能、浴室乾燥、ウォシュレット、バストイレ別、室内洗濯機置場、収納、2人入居可、法人契約相談可 | ||
| 備考 | 詳細閲覧ありがとうございます。最新の空室の確認、内覧のご予約はメール・電話にてお問い合わせください。 文京区の賃貸マンション・賃貸アパートはベステックスにおまかせください! | ||
物件概要
文京区弥生2丁目の閑静な住宅街に佇む分譲賃貸マンション【プリメール弥生】のご紹介です。
鉄筋コンクリート造5階建て、1996年築の物件で閑静な住宅街に立地しているため落ち着きのある生活ができます。
アクセスとしては、東京メトロ千代田線「根津」駅徒歩4分、東京メトロ南北線「東大前」駅徒歩6分、東京メトロ丸ノ内線「本郷三丁目」駅徒歩12分となっております。
通勤通学で電車をご利用の方にもオススメです!
周辺環境としては、スーパー「マルエツプチ池之端二丁目店」「赤札堂根津店」「miniピアゴ西片2丁目店」や、コンビニ「ローソンストア100東京大学工学部三号店」「セブンイレブン根津駅前店」「サンクス台東池之端店」などがあり買い物に便利な立地です。
その他にも、銀行「みずほ銀行 根津支店」や、病院「東京大学医学部附属病院」など生活の中で役立つ施設が点在しており住環境が良好です!
設備はオートロック,カードキー,エレベーター,駐輪場,エアコンなどが揃っています♪
是非一度ご覧ください!
鉄筋コンクリート造5階建て、1996年築の物件で閑静な住宅街に立地しているため落ち着きのある生活ができます。
アクセスとしては、東京メトロ千代田線「根津」駅徒歩4分、東京メトロ南北線「東大前」駅徒歩6分、東京メトロ丸ノ内線「本郷三丁目」駅徒歩12分となっております。
通勤通学で電車をご利用の方にもオススメです!
周辺環境としては、スーパー「マルエツプチ池之端二丁目店」「赤札堂根津店」「miniピアゴ西片2丁目店」や、コンビニ「ローソンストア100東京大学工学部三号店」「セブンイレブン根津駅前店」「サンクス台東池之端店」などがあり買い物に便利な立地です。
その他にも、銀行「みずほ銀行 根津支店」や、病院「東京大学医学部附属病院」など生活の中で役立つ施設が点在しており住環境が良好です!
設備はオートロック,カードキー,エレベーター,駐輪場,エアコンなどが揃っています♪
是非一度ご覧ください!
掲載情報について
※随時更新を心がけておりますが、掲載している物件が万が一成約している場合もございますので予めご了承下さいませ。
※駐車場・駐輪場・バイク置場の空き状況についてはお問い合わせ下さい。
※ペット飼育やSOHO利用・楽器使用の可否に関しては、建物の管理規約で可能になっていても、お部屋の所有者様によって禁止の場合もございますので御注意下さい。
詳細はメールやお電話にてスタッフまでご相談下さい。
※駐車場・駐輪場・バイク置場の空き状況についてはお問い合わせ下さい。
※ペット飼育やSOHO利用・楽器使用の可否に関しては、建物の管理規約で可能になっていても、お部屋の所有者様によって禁止の場合もございますので御注意下さい。
詳細はメールやお電話にてスタッフまでご相談下さい。
プリメール弥生の周辺地図
プリメール弥生のご成約済み部屋一覧
| 所在階 | 間取り | 面積 | 賃料 | 管理費 | 敷金 | 礼金 | お問い合わせ | ||||
|---|---|---|---|---|---|---|---|---|---|---|---|
| 1階 | 2LDK | 59.74㎡ | … | … | … | … | 契約済み | 所在階*** 間取り2LDK |
面積59.74㎡ 管理費*** |
敷金*** 礼金*** |
契約済み |
| 1階 | 2SLDK | 81.65㎡ | … | … | … | … | 契約済み | 所在階*** 間取り2SLDK |
面積81.65㎡ 管理費*** |
敷金*** 礼金*** |
契約済み |

