パークウェル千駄木弐番館の賃貸情報
01/16パークウェル千駄木弐番館の賃貸情報
01/16
パークウェル千駄木弐番館の総合評価
総合評価
3
3
| セキュリティ | : |
築年数 | : |
| 建物設備 | : |
駅徒歩 | : |
| セキュリティ: | |
| 建物設備: | |
| 築年数: | |
| 駅徒歩: |
この物件について
| 物件名 | パークウェル千駄木弐番館 | ||
|---|---|---|---|
| 住所 | 東京都文京区千駄木4-11-4 | ||
| 最寄駅 |
JR山手線 田端駅 徒歩10分 東京メトロ千代田線 千駄木駅 徒歩12分 東京メトロ南北線 本駒込駅 徒歩12分 |
||
| 学区 | 千駄木小学校 | ||
| 構造 | RC | 総階数 | 地上11階建て |
| 賃料 | 管理費 | ||
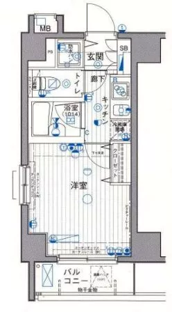
| 間取り | 面積 | ||
| 駐車場 | 無 | 築年月 | 2007年06月 |
| 問合番号 | 072990 | 更新日 | 2020/01/16 |
| 設備 | オートロック、駐輪場有、宅配BOX、コンビニ近、BS・CS、CATV、光ファイバー、インターネット対応、専用ゴミ置場、防犯カメラ、TVモニター付インターホン、分譲賃貸、東京大学自転車圏、エレベーター、千駄木小学校エリア、コンロ二口以上、ガスキッチン、システムキッチン、エアコン、フローリング、ウォシュレット、バストイレ別、室内洗濯機置場、収納、法人契約相談可 | ||
| 備考 | 【パークウェル千駄木弐番館】の賃貸物件情報! 詳細閲覧ありがとうございます。最新の空室の確認、内覧のご予約はメール・電話にてお問い合わせください。 文京区の賃貸マンション・賃貸アパートはベステックスにおまかせください! | ||
物件概要
人気エリア『谷根千』の一角、千駄木の高級分譲マンション【パークウェル千駄木弐番館】のご紹介です!
2007年6月築、鉄筋コンクリート造地上11階建て。20㎡前後の1Kタイプで構成された単身者向けのマンションです。
共用部分には防犯カメラやオートロックといったセキュリティ関係の設備も揃っています!オートロックにはTVモニター付きインターホンもセットなので、より安心してお住まい頂けます♪
また、エントランス内にはメールボックスほか宅配ボックスも完備!忙しい方に人気の専用ゴミ置き場も備わっています♪
こちらのマンションは『動坂』という坂に面しており、徒歩圏内に多くの駅・路線が利用可能です!
利用可能な駅は、JR山手線・京浜東北線の『田端駅』が徒歩10分。その他にも、『西日暮里駅』や『千駄木駅』、『本駒込駅』も徒歩圏内で利用可能。駅までの距離が多少あるものの、複数の路線が使えるので便利です!
『田端駅』からは山手線利用で『東京駅』や『上野駅』『池袋駅』『新宿駅』『品川駅』…といった各ターミナル駅にも乗り換え無し一本でアクセス可能なので、通勤にも非常に便利♪
自転車圏内には『東京大学』もあり、学生や社会人の単身者向けマンションなので東大生にもオススメの立地です!
物件の周辺には、スーパーマーケット『コープ』『肉のハナマサ』や、コンビニ『セブンイレブン』『ファミリーマート』、ドラッグストア『ユニバーサルドラッグ』、その他飲食店などもあり、買い物や食事の面でも便利です!周辺には他にも公園などが複数あり、住環境は非常に良好♪
専有部分の設備に関しても、ガスシステムキッチン・浴室乾燥機・バストイレ別・温水洗浄便座・室内洗濯機置場・エアコン…といったものが揃っているので、快適な暮らしを支えてくれます♪
有名な『谷中銀座商店街』も利用圏内にある人気エリアの高級分譲マンション、是非お問い合わせください!
2007年6月築、鉄筋コンクリート造地上11階建て。20㎡前後の1Kタイプで構成された単身者向けのマンションです。
共用部分には防犯カメラやオートロックといったセキュリティ関係の設備も揃っています!オートロックにはTVモニター付きインターホンもセットなので、より安心してお住まい頂けます♪
また、エントランス内にはメールボックスほか宅配ボックスも完備!忙しい方に人気の専用ゴミ置き場も備わっています♪
こちらのマンションは『動坂』という坂に面しており、徒歩圏内に多くの駅・路線が利用可能です!
利用可能な駅は、JR山手線・京浜東北線の『田端駅』が徒歩10分。その他にも、『西日暮里駅』や『千駄木駅』、『本駒込駅』も徒歩圏内で利用可能。駅までの距離が多少あるものの、複数の路線が使えるので便利です!
『田端駅』からは山手線利用で『東京駅』や『上野駅』『池袋駅』『新宿駅』『品川駅』…といった各ターミナル駅にも乗り換え無し一本でアクセス可能なので、通勤にも非常に便利♪
自転車圏内には『東京大学』もあり、学生や社会人の単身者向けマンションなので東大生にもオススメの立地です!
物件の周辺には、スーパーマーケット『コープ』『肉のハナマサ』や、コンビニ『セブンイレブン』『ファミリーマート』、ドラッグストア『ユニバーサルドラッグ』、その他飲食店などもあり、買い物や食事の面でも便利です!周辺には他にも公園などが複数あり、住環境は非常に良好♪
専有部分の設備に関しても、ガスシステムキッチン・浴室乾燥機・バストイレ別・温水洗浄便座・室内洗濯機置場・エアコン…といったものが揃っているので、快適な暮らしを支えてくれます♪
有名な『谷中銀座商店街』も利用圏内にある人気エリアの高級分譲マンション、是非お問い合わせください!
掲載情報について
※随時更新を心がけておりますが、掲載している物件が万が一成約している場合もございますので予めご了承下さいませ。
※駐車場・駐輪場・バイク置場の空き状況についてはお問い合わせ下さい。
※ペット飼育やSOHO利用・楽器使用の可否に関しては、建物の管理規約で可能になっていても、お部屋の所有者様によって禁止の場合もございますので御注意下さい。
詳細はメールやお電話にてスタッフまでご相談下さい。
※駐車場・駐輪場・バイク置場の空き状況についてはお問い合わせ下さい。
※ペット飼育やSOHO利用・楽器使用の可否に関しては、建物の管理規約で可能になっていても、お部屋の所有者様によって禁止の場合もございますので御注意下さい。
詳細はメールやお電話にてスタッフまでご相談下さい。
パークウェル千駄木弐番館の周辺地図
パークウェル千駄木弐番館のご成約済み部屋一覧
| 所在階 | 間取り | 面積 | 賃料 | 管理費 | 敷金 | 礼金 | お問い合わせ | ||||
|---|---|---|---|---|---|---|---|---|---|---|---|
| 2階 | 1K | 20.56㎡ | … | … | … | … | 契約済み | 所在階*** 間取り1K |
面積20.56㎡ 管理費*** |
敷金*** 礼金*** |
契約済み |
| 3階 | 1K | 20.16㎡ | … | … | … | … | 契約済み | 所在階*** 間取り1K |
面積20.16㎡ 管理費*** |
敷金*** 礼金*** |
契約済み |
| 3階 | 1K | 20.16㎡ | … | … | … | … | 契約済み | 所在階*** 間取り1K |
面積20.16㎡ 管理費*** |
敷金*** 礼金*** |
契約済み |
| 3階 | 1K | 20.56㎡ | … | … | … | … | 契約済み | 所在階*** 間取り1K |
面積20.56㎡ 管理費*** |
敷金*** 礼金*** |
契約済み |
| 3階 | 1K | 20.16㎡ | … | … | … | … | 契約済み | 所在階*** 間取り1K |
面積20.16㎡ 管理費*** |
敷金*** 礼金*** |
契約済み |
| 4階 | 1K | 20.16㎡ | … | … | … | … | 契約済み | 所在階*** 間取り1K |
面積20.16㎡ 管理費*** |
敷金*** 礼金*** |
契約済み |
| 4階 | 1K | 20.16㎡ | … | … | … | … | 契約済み | 所在階*** 間取り1K |
面積20.16㎡ 管理費*** |
敷金*** 礼金*** |
契約済み |
| 4階 | 1K | 20.56㎡ | … | … | … | … | 契約済み | 所在階*** 間取り1K |
面積20.56㎡ 管理費*** |
敷金*** 礼金*** |
契約済み |
| 4階 | 1K | 20.16㎡ | … | … | … | … | 契約済み | 所在階*** 間取り1K |
面積20.16㎡ 管理費*** |
敷金*** 礼金*** |
契約済み |
| 5階 | 1K | 20.56㎡ | … | … | … | … | 契約済み | 所在階*** 間取り1K |
面積20.56㎡ 管理費*** |
敷金*** 礼金*** |
契約済み |
| 6階 | 1K | 20.56㎡ | … | … | … | … | 契約済み | 所在階*** 間取り1K |
面積20.56㎡ 管理費*** |
敷金*** 礼金*** |
契約済み |
| 6階 | 1K | 20.56㎡ | … | … | … | … | 契約済み | 所在階*** 間取り1K |
面積20.56㎡ 管理費*** |
敷金*** 礼金*** |
契約済み |
| 6階 | 1K | 20.16㎡ | … | … | … | … | 契約済み | 所在階*** 間取り1K |
面積20.16㎡ 管理費*** |
敷金*** 礼金*** |
契約済み |
| 7階 | 1K | 20.16㎡ | … | … | … | … | 契約済み | 所在階*** 間取り1K |
面積20.16㎡ 管理費*** |
敷金*** 礼金*** |
契約済み |
| 8階 | 1K | 20.16㎡ | … | … | … | … | 契約済み | 所在階*** 間取り1K |
面積20.16㎡ 管理費*** |
敷金*** 礼金*** |
契約済み |
| 9階 | 1K | 20.56㎡ | … | … | … | … | 契約済み | 所在階*** 間取り1K |
面積20.56㎡ 管理費*** |
敷金*** 礼金*** |
契約済み |
| 9階 | 1K | 20.16㎡ | … | … | … | … | 契約済み | 所在階*** 間取り1K |
面積20.16㎡ 管理費*** |
敷金*** 礼金*** |
契約済み |
| 10階 | 1K | 20.56㎡ | … | … | … | … | 契約済み | 所在階*** 間取り1K |
面積20.56㎡ 管理費*** |
敷金*** 礼金*** |
契約済み |














