スタッフのコメント
 内村慎吾
							 内村慎吾
						【ルーブル小石川弐番館】は文京区小石川の静かな住宅街にある分譲賃貸マンションです。最寄りの茗荷谷駅からは都心主要駅へのアクセスが良好で、駅周辺にはスーパーや飲食店、コンビニが充実。自然も豊かで教育施設も多く、学生や単身者に適した環境です。2005年築の鉄筋コンクリート造6階建で、オートロックや宅配ボックスなど設備も充実しています。
					 内村慎吾
							 内村慎吾
						| セキュリティ | : | 築年数 | : | 
| 建物設備 | : | 駅徒歩 | : | 
| セキュリティ: | |
| 建物設備: | |
| 築年数: | |
| 駅徒歩: | 
| 物件名 | ルーブル小石川弐番館 | ||
|---|---|---|---|
| 住所 | 東京都文京区小石川5-34-2 | ||
| 最寄駅 | 東京メトロ丸ノ内線 茗荷谷駅 徒歩7分 東京メトロ有楽町線 護国寺駅 徒歩15分 | ||
| 学区 | 窪町小学校 | ||
| 構造 | RC | 総階数 | 地上6階建て | 
| 賃料 | 84,000円 | 管理費 | 10,000円 | 
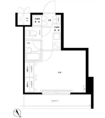
| 間取り | 1K | 面積 | 20.25㎡ | 
| 駐車場 | 無 | 築年月 | 2005年04月 | 
| 問合番号 | 709134 | 更新日 | 2025/09/23 | 
| 設備 | オートロック、法人契約相談可、駐輪場有、宅配BOX、コンビニ近、BS・CS、光ファイバー、インターネット対応、専用ゴミ置場、TVモニター付インターホン、分譲賃貸、東京大学自転車圏、エレベーター、窪町小学校エリア、コンロ二口以上、ガスキッチン、システムキッチン、エアコン、フローリング、浴室乾燥、バストイレ別、室内洗濯機置場、収納、楽器相談可 | ||
| 備考 | 詳細閲覧ありがとうございます。最新の空室の確認、内覧のご予約はメール・電話にてお問い合わせください。 文京区の賃貸マンション・賃貸アパートはベステックスにおまかせください! | ||
| 所在階 | 間取り | 面積 | 賃料 | 管理費 | 敷金 | 礼金 | お問い合わせ | ||||
|---|---|---|---|---|---|---|---|---|---|---|---|
| 1階 | 1K | 20.25㎡ | … | … | … | … | 契約済み | 所在階*** 間取り1K | 面積20.25㎡ 管理費*** | 敷金*** 礼金*** | 契約済み | 
| 1階 | 1K | 20.25㎡ | … | … | … | … | 契約済み | 所在階*** 間取り1K | 面積20.25㎡ 管理費*** | 敷金*** 礼金*** | 契約済み | 
| 1階 | 1K | 20.25㎡ | … | … | … | … | 契約済み | 所在階*** 間取り1K | 面積20.25㎡ 管理費*** | 敷金*** 礼金*** | 契約済み | 
| 2階 | 1K | 20.52㎡ | … | … | … | … | 契約済み | 所在階*** 間取り1K | 面積20.52㎡ 管理費*** | 敷金*** 礼金*** | 契約済み | 
| 2階 | 1K | 20.25㎡ | … | … | … | … | 契約済み | 所在階*** 間取り1K | 面積20.25㎡ 管理費*** | 敷金*** 礼金*** | 契約済み | 
| 2階 | 1K | 20.25㎡ | … | … | … | … | 契約済み | 所在階*** 間取り1K | 面積20.25㎡ 管理費*** | 敷金*** 礼金*** | 契約済み | 
| 2階 | 1K | 20.25㎡ | … | … | … | … | 契約済み | 所在階*** 間取り1K | 面積20.25㎡ 管理費*** | 敷金*** 礼金*** | 契約済み | 
| 2階 | 1K | 20.25㎡ | … | … | … | … | 契約済み | 所在階*** 間取り1K | 面積20.25㎡ 管理費*** | 敷金*** 礼金*** | 契約済み | 
| 2階 | 1K | 20.25㎡ | … | … | … | … | 契約済み | 所在階*** 間取り1K | 面積20.25㎡ 管理費*** | 敷金*** 礼金*** | 契約済み | 
| 3階 | 1K | 20.25㎡ | … | … | … | … | 契約済み | 所在階*** 間取り1K | 面積20.25㎡ 管理費*** | 敷金*** 礼金*** | 契約済み | 
| 3階 | 1K | 20.25㎡ | … | … | … | … | 契約済み | 所在階*** 間取り1K | 面積20.25㎡ 管理費*** | 敷金*** 礼金*** | 契約済み | 
| 3階 | 1K | 20.25㎡ | … | … | … | … | 契約済み | 所在階*** 間取り1K | 面積20.25㎡ 管理費*** | 敷金*** 礼金*** | 契約済み | 
| 3階 | 1K | 20.25㎡ | … | … | … | … | 契約済み | 所在階*** 間取り1K | 面積20.25㎡ 管理費*** | 敷金*** 礼金*** | 契約済み | 
| 4階 | 1K | 20.25㎡ | … | … | … | … | 契約済み | 所在階*** 間取り1K | 面積20.25㎡ 管理費*** | 敷金*** 礼金*** | 契約済み | 
| 4階 | 1K | 20.52㎡ | … | … | … | … | 契約済み | 所在階*** 間取り1K | 面積20.52㎡ 管理費*** | 敷金*** 礼金*** | 契約済み | 
| 4階 | 1K | 20.25㎡ | … | … | … | … | 契約済み | 所在階*** 間取り1K | 面積20.25㎡ 管理費*** | 敷金*** 礼金*** | 契約済み | 
| 4階 | 1K | 20.25㎡ | … | … | … | … | 契約済み | 所在階*** 間取り1K | 面積20.25㎡ 管理費*** | 敷金*** 礼金*** | 契約済み | 
| 4階 | 1K | 20.25㎡ | … | … | … | … | 契約済み | 所在階*** 間取り1K | 面積20.25㎡ 管理費*** | 敷金*** 礼金*** | 契約済み | 
| 4階 | 1K | 20.25㎡ | … | … | … | … | 契約済み | 所在階*** 間取り1K | 面積20.25㎡ 管理費*** | 敷金*** 礼金*** | 契約済み | 
| 4階 | 1K | 20.25㎡ | … | … | … | … | 契約済み | 所在階*** 間取り1K | 面積20.25㎡ 管理費*** | 敷金*** 礼金*** | 契約済み | 
| 5階 | 1K | 20.25㎡ | … | … | … | … | 契約済み | 所在階*** 間取り1K | 面積20.25㎡ 管理費*** | 敷金*** 礼金*** | 契約済み | 
| 5階 | 1K | 21.15㎡ | … | … | … | … | 契約済み | 所在階*** 間取り1K | 面積21.15㎡ 管理費*** | 敷金*** 礼金*** | 契約済み | 
| 5階 | 1K | 20.25㎡ | … | … | … | … | 契約済み | 所在階*** 間取り1K | 面積20.25㎡ 管理費*** | 敷金*** 礼金*** | 契約済み | 
| 6階 | 2K | 30.37㎡ | … | … | … | … | 契約済み | 所在階*** 間取り2K | 面積30.37㎡ 管理費*** | 敷金*** 礼金*** | 契約済み | 
| 6階 | 2K | 34.50㎡ | … | … | … | … | 契約済み | 所在階*** 間取り2K | 面積34.50㎡ 管理費*** | 敷金*** 礼金*** | 契約済み |