パレステュディオドルチェ本駒込の賃貸情報
05/01パレステュディオドルチェ本駒込の賃貸情報
05/01
パレステュディオドルチェ本駒込の総合評価
総合評価
3.0
3.0
| セキュリティ | : |
築年数 | : |
| 建物設備 | : |
駅徒歩 | : |
| セキュリティ: | |
| 建物設備: | |
| 築年数: | |
| 駅徒歩: |
この物件について
| 物件名 | パレステュディオドルチェ本駒込 | ||
|---|---|---|---|
| 住所 | 東京都文京区本駒込4丁目36-10 | ||
| 最寄駅 |
JR山手線 田端駅 徒歩10分 東京メトロ南北線 本駒込駅 徒歩14分 JR山手線 駒込駅 徒歩13分 |
||
| 学区 | 昭和小学校 | ||
| 構造 | RC | 総階数 | 地上14階建て |
| 賃料 | 80,000円 | 管理費 | 10,000円 |
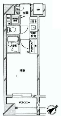
| 間取り | 1R | 面積 | 21.00㎡ |
| 駐車場 | 無 駐輪場有 | 築年月 | 2005年09月 |
| 問合番号 | 50146 | 更新日 | 2026/05/01 |
| 設備 | オートロック、法人契約相談可、駐輪場有、宅配BOX、コンビニ近、BS・CS、光ファイバー、インターネット対応、専用ゴミ置場、防犯カメラ、TVモニター付インターホン、分譲賃貸、東京大学自転車圏、エレベーター、昭和小学校エリア、コンロ二口以上、ガスキッチン、システムキッチン、エアコン、フローリング、バストイレ別、室内洗濯機置場、洗濯機置場あり、収納 | ||
| 備考 | パレステュディオドルチェ本駒込の分譲賃貸マンション情報。 詳細閲覧ありがとうございます。最新の空室の確認、内覧のご予約はメール・電話にてお問い合わせください。 文京区の賃貸マンション・賃貸アパートはベステックスにおまかせください! | ||
物件概要
文京区本駒込4丁目【パレステュディオドルチェ本駒込】の賃貸情報のご紹介です♪
不忍通り沿いに建つ鉄筋コンクリート(RC)造14階建てのマンションです。
大通りに面しているので、女性も安心して生活して頂けます。
~交通アクセス~
JR山手線【田端駅】徒歩10分
東京メトロ南北線【本駒込駅】徒歩14分
と2路線利用可能です!
JRと東京メトロが使えるので休日の外出先にも困らないアクセスが御座います!
~周辺環境~
周辺には【文京グリーンコート】や【マルエツプチ】などがあり、お買い物には困らない環境が整っております!
お引越しの際には必須項目である【セブンイレブン】、【ファミリーマート】などのコンビニ環境も充実しております!
郵便局が徒歩圏内にありますので郵送だけでなく、各種お手続もこちらで行えます!
金融機関も徒歩圏内にあり、近くにあると嬉しい施設が揃っております!
24時間のフィットネスジムもあり、お仕事終わりや休日などに身体を動かして気分をリフレッシュすることも可能です!
クリーニング屋さんやコインランドリーも徒歩圏内に御座いますので、衣替えの時期や洗濯物が乾いていない!なんて言ったトラブル時でも安心です☆
「東洋文庫ミュージアム」があります!
東洋学の専門図書館・研究所で、現在ではミュージアムとして開放されており、休日などには多くの方が訪れます☆
落ち着いた時間を過ごすことが出来ますよ♪
文京区内でも有数の絶景スポット「六義園」もすぐ側に!春には桜が咲き、秋には色鮮やかな紅葉を見ることが出来ます!おススメは秋の紅葉です!!夕方にはライトアップされた風景を楽しむことが出来ます♪
~設備内容~
もちろんオートロックも完備していますし、TVモニター付インターフォンや
宅配BOXなど、直接荷物の受け取りなど行わずに済みますので防犯面がが非常に充実しています♪
物件には駐輪場もありますので、日常の足に自転車をご利用いただけます!
是非、一度ご覧下さい。
不忍通り沿いに建つ鉄筋コンクリート(RC)造14階建てのマンションです。
大通りに面しているので、女性も安心して生活して頂けます。
~交通アクセス~
JR山手線【田端駅】徒歩10分
東京メトロ南北線【本駒込駅】徒歩14分
と2路線利用可能です!
JRと東京メトロが使えるので休日の外出先にも困らないアクセスが御座います!
~周辺環境~
周辺には【文京グリーンコート】や【マルエツプチ】などがあり、お買い物には困らない環境が整っております!
お引越しの際には必須項目である【セブンイレブン】、【ファミリーマート】などのコンビニ環境も充実しております!
郵便局が徒歩圏内にありますので郵送だけでなく、各種お手続もこちらで行えます!
金融機関も徒歩圏内にあり、近くにあると嬉しい施設が揃っております!
24時間のフィットネスジムもあり、お仕事終わりや休日などに身体を動かして気分をリフレッシュすることも可能です!
クリーニング屋さんやコインランドリーも徒歩圏内に御座いますので、衣替えの時期や洗濯物が乾いていない!なんて言ったトラブル時でも安心です☆
「東洋文庫ミュージアム」があります!
東洋学の専門図書館・研究所で、現在ではミュージアムとして開放されており、休日などには多くの方が訪れます☆
落ち着いた時間を過ごすことが出来ますよ♪
文京区内でも有数の絶景スポット「六義園」もすぐ側に!春には桜が咲き、秋には色鮮やかな紅葉を見ることが出来ます!おススメは秋の紅葉です!!夕方にはライトアップされた風景を楽しむことが出来ます♪
~設備内容~
もちろんオートロックも完備していますし、TVモニター付インターフォンや
宅配BOXなど、直接荷物の受け取りなど行わずに済みますので防犯面がが非常に充実しています♪
物件には駐輪場もありますので、日常の足に自転車をご利用いただけます!
是非、一度ご覧下さい。
掲載情報について
※随時更新を心がけておりますが、掲載している物件が万が一成約している場合もございますので予めご了承下さいませ。
※駐車場・駐輪場・バイク置場の空き状況についてはお問い合わせ下さい。
※ペット飼育やSOHO利用・楽器使用の可否に関しては、建物の管理規約で可能になっていても、お部屋の所有者様によって禁止の場合もございますので御注意下さい。
詳細はメールやお電話にてスタッフまでご相談下さい。
※駐車場・駐輪場・バイク置場の空き状況についてはお問い合わせ下さい。
※ペット飼育やSOHO利用・楽器使用の可否に関しては、建物の管理規約で可能になっていても、お部屋の所有者様によって禁止の場合もございますので御注意下さい。
詳細はメールやお電話にてスタッフまでご相談下さい。
パレステュディオドルチェ本駒込の周辺地図
パレステュディオドルチェ本駒込のご成約済み部屋一覧
| 所在階 | 間取り | 面積 | 賃料 | 管理費 | 敷金 | 礼金 | お問い合わせ | ||||
|---|---|---|---|---|---|---|---|---|---|---|---|
| 2階 | 1K | 21.28㎡ | … | … | … | … | 契約済み | 所在階*** 間取り1K |
面積21.28㎡ 管理費*** |
敷金*** 礼金*** |
契約済み |
| 2階 | 1K | 21.28㎡ | … | … | … | … | 契約済み | 所在階*** 間取り1K |
面積21.28㎡ 管理費*** |
敷金*** 礼金*** |
契約済み |
| 2階 | 1K | 30.88㎡ | … | … | … | … | 契約済み | 所在階*** 間取り1K |
面積30.88㎡ 管理費*** |
敷金*** 礼金*** |
契約済み |
| 2階 | 1K | 21.28㎡ | … | … | … | … | 契約済み | 所在階*** 間取り1K |
面積21.28㎡ 管理費*** |
敷金*** 礼金*** |
契約済み |
| 2階 | 1R | 21.00㎡ | … | … | … | … | 契約済み | 所在階*** 間取り1R |
面積21.00㎡ 管理費*** |
敷金*** 礼金*** |
契約済み |
| 3階 | 1K | 21.28㎡ | … | … | … | … | 契約済み | 所在階*** 間取り1K |
面積21.28㎡ 管理費*** |
敷金*** 礼金*** |
契約済み |
| 3階 | 1K | 21.28㎡ | … | … | … | … | 契約済み | 所在階*** 間取り1K |
面積21.28㎡ 管理費*** |
敷金*** 礼金*** |
契約済み |
| 3階 | 1K | 21.28㎡ | … | … | … | … | 契約済み | 所在階*** 間取り1K |
面積21.28㎡ 管理費*** |
敷金*** 礼金*** |
契約済み |
| 3階 | 1R | 21.00㎡ | … | … | … | … | 契約済み | 所在階*** 間取り1R |
面積21.00㎡ 管理費*** |
敷金*** 礼金*** |
契約済み |
| 4階 | 1K | 21.28㎡ | … | … | … | … | 契約済み | 所在階*** 間取り1K |
面積21.28㎡ 管理費*** |
敷金*** 礼金*** |
契約済み |
| 4階 | 1K | 21.28㎡ | … | … | … | … | 契約済み | 所在階*** 間取り1K |
面積21.28㎡ 管理費*** |
敷金*** 礼金*** |
契約済み |
| 4階 | 1K | 21.28㎡ | … | … | … | … | 契約済み | 所在階*** 間取り1K |
面積21.28㎡ 管理費*** |
敷金*** 礼金*** |
契約済み |
| 4階 | 1K | 21.28㎡ | … | … | … | … | 契約済み | 所在階*** 間取り1K |
面積21.28㎡ 管理費*** |
敷金*** 礼金*** |
契約済み |
| 4階 | 1K | 21.00㎡ | … | … | … | … | 契約済み | 所在階*** 間取り1K |
面積21.00㎡ 管理費*** |
敷金*** 礼金*** |
契約済み |
| 4階 | 1R | 30.88㎡ | … | … | … | … | 契約済み | 所在階*** 間取り1R |
面積30.88㎡ 管理費*** |
敷金*** 礼金*** |
契約済み |
| 5階 | 1K | 21.28㎡ | … | … | … | … | 契約済み | 所在階*** 間取り1K |
面積21.28㎡ 管理費*** |
敷金*** 礼金*** |
契約済み |
| 5階 | 1K | 21.00㎡ | … | … | … | … | 契約済み | 所在階*** 間取り1K |
面積21.00㎡ 管理費*** |
敷金*** 礼金*** |
契約済み |
| 5階 | 1K | 21.28㎡ | … | … | … | … | 契約済み | 所在階*** 間取り1K |
面積21.28㎡ 管理費*** |
敷金*** 礼金*** |
契約済み |
| 6階 | 1K | 21.00㎡ | … | … | … | … | 契約済み | 所在階*** 間取り1K |
面積21.00㎡ 管理費*** |
敷金*** 礼金*** |
契約済み |
| 6階 | 1K | 21.28㎡ | … | … | … | … | 契約済み | 所在階*** 間取り1K |
面積21.28㎡ 管理費*** |
敷金*** 礼金*** |
契約済み |
| 6階 | 1K | 30.88㎡ | … | … | … | … | 契約済み | 所在階*** 間取り1K |
面積30.88㎡ 管理費*** |
敷金*** 礼金*** |
契約済み |
| 7階 | 1K | 21.28㎡ | … | … | … | … | 契約済み | 所在階*** 間取り1K |
面積21.28㎡ 管理費*** |
敷金*** 礼金*** |
契約済み |
| 7階 | 1K | 21.28㎡ | … | … | … | … | 契約済み | 所在階*** 間取り1K |
面積21.28㎡ 管理費*** |
敷金*** 礼金*** |
契約済み |
| 7階 | 1K | 21.28㎡ | … | … | … | … | 契約済み | 所在階*** 間取り1K |
面積21.28㎡ 管理費*** |
敷金*** 礼金*** |
契約済み |
| 7階 | 1R | 21.00㎡ | … | … | … | … | 契約済み | 所在階*** 間取り1R |
面積21.00㎡ 管理費*** |
敷金*** 礼金*** |
契約済み |
| 7階 | 1R | 27.09㎡ | … | … | … | … | 契約済み | 所在階*** 間取り1R |
面積27.09㎡ 管理費*** |
敷金*** 礼金*** |
契約済み |
| 8階 | 1K | 21.28㎡ | … | … | … | … | 契約済み | 所在階*** 間取り1K |
面積21.28㎡ 管理費*** |
敷金*** 礼金*** |
契約済み |
| 8階 | 1K | 21.00㎡ | … | … | … | … | 契約済み | 所在階*** 間取り1K |
面積21.00㎡ 管理費*** |
敷金*** 礼金*** |
契約済み |
| 9階 | 1K | 21.28㎡ | … | … | … | … | 契約済み | 所在階*** 間取り1K |
面積21.28㎡ 管理費*** |
敷金*** 礼金*** |
契約済み |
| 9階 | 1K | 21.28㎡ | … | … | … | … | 契約済み | 所在階*** 間取り1K |
面積21.28㎡ 管理費*** |
敷金*** 礼金*** |
契約済み |
| 9階 | 1R | 27.09㎡ | … | … | … | … | 契約済み | 所在階*** 間取り1R |
面積27.09㎡ 管理費*** |
敷金*** 礼金*** |
契約済み |
| 10階 | 1K | 21.28㎡ | … | … | … | … | 契約済み | 所在階*** 間取り1K |
面積21.28㎡ 管理費*** |
敷金*** 礼金*** |
契約済み |
| 10階 | 1K | 21.28㎡ | … | … | … | … | 契約済み | 所在階*** 間取り1K |
面積21.28㎡ 管理費*** |
敷金*** 礼金*** |
契約済み |
| 10階 | 1K | 21.28㎡ | … | … | … | … | 契約済み | 所在階*** 間取り1K |
面積21.28㎡ 管理費*** |
敷金*** 礼金*** |
契約済み |
| 11階 | 1R | 27.09㎡ | … | … | … | … | 契約済み | 所在階*** 間取り1R |
面積27.09㎡ 管理費*** |
敷金*** 礼金*** |
契約済み |
| 12階 | 1K | 21.28㎡ | … | … | … | … | 契約済み | 所在階*** 間取り1K |
面積21.28㎡ 管理費*** |
敷金*** 礼金*** |
契約済み |
| 12階 | 1K | 21.28㎡ | … | … | … | … | 契約済み | 所在階*** 間取り1K |
面積21.28㎡ 管理費*** |
敷金*** 礼金*** |
契約済み |
| 12階 | 1K | 21.28㎡ | … | … | … | … | 契約済み | 所在階*** 間取り1K |
面積21.28㎡ 管理費*** |
敷金*** 礼金*** |
契約済み |
| 12階 | 1R | 21.00㎡ | … | … | … | … | 契約済み | 所在階*** 間取り1R |
面積21.00㎡ 管理費*** |
敷金*** 礼金*** |
契約済み |
| 13階 | 1K | 21.00㎡ | … | … | … | … | 契約済み | 所在階*** 間取り1K |
面積21.00㎡ 管理費*** |
敷金*** 礼金*** |
契約済み |
| 14階 | 1K | 21.28㎡ | … | … | … | … | 契約済み | 所在階*** 間取り1K |
面積21.28㎡ 管理費*** |
敷金*** 礼金*** |
契約済み |
| 14階 | 1DK | 32.68㎡ | … | … | … | … | 契約済み | 所在階*** 間取り1DK |
面積32.68㎡ 管理費*** |
敷金*** 礼金*** |
契約済み |
| 14階 | 1R | 27.09㎡ | … | … | … | … | 契約済み | 所在階*** 間取り1R |
面積27.09㎡ 管理費*** |
敷金*** 礼金*** |
契約済み |
































エントランスが広々しており、高級感が漂います。
JRと地下鉄が使える立地です。
駅までは若干距離がありますので、自転車があると非常に動きやすくなります。
近隣にはお散歩スポットも充実しておりますので、休日も楽しめます☆