グリーンハウスの賃貸情報
01/20グリーンハウスの賃貸情報
01/20
グリーンハウスの総合評価
総合評価
3
3
| セキュリティ | : |
築年数 | : |
| 建物設備 | : |
駅徒歩 | : |
| セキュリティ: | |
| 建物設備: | |
| 築年数: | |
| 駅徒歩: |
この物件について
| 物件名 | グリーンハウス | ||
|---|---|---|---|
| 住所 | 東京都文京区小石川5-40-1 | ||
| 最寄駅 |
東京メトロ丸ノ内線 茗荷谷駅 徒歩8分 |
||
| 学区 | 窪町小学校 | ||
| 構造 | SRC | 総階数 | 地上5階建て |
| 賃料 | 管理費 | ||
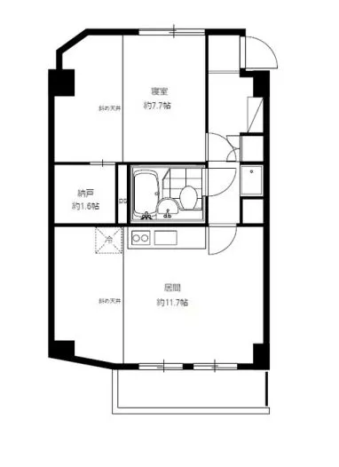
| 間取り | 面積 | ||
| 駐車場 | 築年月 | 1986年05月 | |
| 問合番号 | 846668745 | 更新日 | 2017/01/20 |
| 設備 | 駐車場有、駐輪場有、低層マンション、コンビニ近、BS・CS、CATV、光ファイバー、インターネット対応、専用ゴミ置場、防犯カメラ、TVモニター付インターホン、東京大学自転車圏、ペット可、エレベーター、窪町小学校エリア、ガスキッチン、エアコン、フローリング、バストイレ別、室内洗濯機置場、収納、2人入居可、法人契約相談可 | ||
| 備考 | グリーンハウスの賃貸マンション情報です♪ 詳細閲覧ありがとうございます。最新の空室の確認、内覧のご予約はメール・電話にてお問い合わせください。 文京区の賃貸マンション・賃貸アパートはベステックスにおまかせください! | ||
物件概要
文京区内有数の桜の名所『播磨坂さくら並木』が目の前に!文京区小石川5丁目の桜並木沿いに佇むペット可賃貸マンション【グリーンハウス】のご紹介です。
目の前の『播磨坂さくら並木』では毎年3月下旬~4月上旬のシーズンになると、文京花の五大まつりのひとつ『文京さくらまつり』が開催され、見事な桜並木や桜吹雪、桜の絨毯などを堪能できます♪
お花見シーズンにはこれ以上無い特等席になります!
他にも、周辺には『教育の森公園』や『小石川植物園』といったスポットも有り、都心でありながら豊富な自然・緑を感じることの出来る環境が人気のエリアでもあります♪
物件から桜並木を上ったところには、スーパーマーケット『三徳』や100円ショップもあるので、日々の買い物にも便利!坂の下にも『まいばすけっと』や『セブンイレブン』が御座います。
最寄り駅の茗荷谷駅前も再開発済みでとても綺麗なだけでなく、スーパーマーケットにコンビニ、ドラッグストア、飲食店、銀行…など、様々なお店が揃っているので不自由をしない環境です!
『茗荷谷駅』までは徒歩8分の距離で、東京メトロ丸ノ内線で『大手町駅』『東京駅』『銀座駅』まで15分以内、『霞ヶ関駅』には20分以内でアクセス可能なので通勤にも便利♪反対方面の『池袋駅』にはたった2駅でなんと5分以内で行けます!
1986年5月築の建物は、タイル貼りの落ち着いた外観です。
鉄骨鉄筋コンクリート造、地上5階建ての建物で、1階には桜並木を臨むオシャレな飲食店が入っています♪
もちろんエレベーターも完備されており、敷地内には駐輪場や専用のゴミ置き場も御座います!
区内でも人気の高い『窪町小学校』の通学区域内にあり、建物内のお部屋も2DK~というマンションなのでお子様の通学を控えたご家庭にもオススメです!
文京区内でも非常に人気の高いロケーションにあり、ペットともお住まい頂ける希少な物件♪
是非お問い合わせください!
目の前の『播磨坂さくら並木』では毎年3月下旬~4月上旬のシーズンになると、文京花の五大まつりのひとつ『文京さくらまつり』が開催され、見事な桜並木や桜吹雪、桜の絨毯などを堪能できます♪
お花見シーズンにはこれ以上無い特等席になります!
他にも、周辺には『教育の森公園』や『小石川植物園』といったスポットも有り、都心でありながら豊富な自然・緑を感じることの出来る環境が人気のエリアでもあります♪
物件から桜並木を上ったところには、スーパーマーケット『三徳』や100円ショップもあるので、日々の買い物にも便利!坂の下にも『まいばすけっと』や『セブンイレブン』が御座います。
最寄り駅の茗荷谷駅前も再開発済みでとても綺麗なだけでなく、スーパーマーケットにコンビニ、ドラッグストア、飲食店、銀行…など、様々なお店が揃っているので不自由をしない環境です!
『茗荷谷駅』までは徒歩8分の距離で、東京メトロ丸ノ内線で『大手町駅』『東京駅』『銀座駅』まで15分以内、『霞ヶ関駅』には20分以内でアクセス可能なので通勤にも便利♪反対方面の『池袋駅』にはたった2駅でなんと5分以内で行けます!
1986年5月築の建物は、タイル貼りの落ち着いた外観です。
鉄骨鉄筋コンクリート造、地上5階建ての建物で、1階には桜並木を臨むオシャレな飲食店が入っています♪
もちろんエレベーターも完備されており、敷地内には駐輪場や専用のゴミ置き場も御座います!
区内でも人気の高い『窪町小学校』の通学区域内にあり、建物内のお部屋も2DK~というマンションなのでお子様の通学を控えたご家庭にもオススメです!
文京区内でも非常に人気の高いロケーションにあり、ペットともお住まい頂ける希少な物件♪
是非お問い合わせください!
掲載情報について
※随時更新を心がけておりますが、掲載している物件が万が一成約している場合もございますので予めご了承下さいませ。
※駐車場・駐輪場・バイク置場の空き状況についてはお問い合わせ下さい。
※ペット飼育やSOHO利用・楽器使用の可否に関しては、建物の管理規約で可能になっていても、お部屋の所有者様によって禁止の場合もございますので御注意下さい。
詳細はメールやお電話にてスタッフまでご相談下さい。
※駐車場・駐輪場・バイク置場の空き状況についてはお問い合わせ下さい。
※ペット飼育やSOHO利用・楽器使用の可否に関しては、建物の管理規約で可能になっていても、お部屋の所有者様によって禁止の場合もございますので御注意下さい。
詳細はメールやお電話にてスタッフまでご相談下さい。
グリーンハウスの周辺地図
グリーンハウスのご成約済み部屋一覧
| 所在階 | 間取り | 面積 | 賃料 | 管理費 | 敷金 | 礼金 | お問い合わせ | ||||
|---|---|---|---|---|---|---|---|---|---|---|---|
| 2階 | 3LDK | 101.40㎡ | … | … | … | … | 契約済み | 所在階*** 間取り3LDK |
面積101.40㎡ 管理費*** |
敷金*** 礼金*** |
契約済み |
| 2階 | 2DK | 43.02㎡ | … | … | … | … | 契約済み | 所在階*** 間取り2DK |
面積43.02㎡ 管理費*** |
敷金*** 礼金*** |
契約済み |
| 3階 | 3LDK | 60.95㎡ | … | … | … | … | 契約済み | 所在階*** 間取り3LDK |
面積60.95㎡ 管理費*** |
敷金*** 礼金*** |
契約済み |
| 3階 | 2DK | 38.36㎡ | … | … | … | … | 契約済み | 所在階*** 間取り2DK |
面積38.36㎡ 管理費*** |
敷金*** 礼金*** |
契約済み |
| 3階 | 2DK | 43.02㎡ | … | … | … | … | 契約済み | 所在階*** 間取り2DK |
面積43.02㎡ 管理費*** |
敷金*** 礼金*** |
契約済み |
| 4階 | 2DK | 43.02㎡ | … | … | … | … | 契約済み | 所在階*** 間取り2DK |
面積43.02㎡ 管理費*** |
敷金*** 礼金*** |
契約済み |
| 4階 | 2DK | 43.02㎡ | … | … | … | … | 契約済み | 所在階*** 間取り2DK |
面積43.02㎡ 管理費*** |
敷金*** 礼金*** |
契約済み |
| 5階 | 1LDK | 43.70㎡ | … | … | … | … | 契約済み | 所在階*** 間取り1LDK |
面積43.70㎡ 管理費*** |
敷金*** 礼金*** |
契約済み |
| 5階 | 2LDK | 82.85㎡ | … | … | … | … | 契約済み | 所在階*** 間取り2LDK |
面積82.85㎡ 管理費*** |
敷金*** 礼金*** |
契約済み |







