スタッフのコメント

文京区本駒込1丁目の分譲賃貸マンション【アトラス白山】のご紹介です!人気のアトラスシリーズで複数の間取りがあり単身の方からファミリー層まで住める大型マンションです!セキュリティ面がとてお充実しており、オートロックが2カ所必要となります!駐輪場や敷地内ゴミ置き場、宅配ボックスなどももちろん御座います!物件の場所も高台に位置しており、スーパーやコンビニ、飲食店等のお店も多くございます!最寄りの小学校までは徒歩4分と近いので安心です!是非、お問い合わせをお待ちしております!
セキュリティ | : |
築年数 | : |
建物設備 | : |
駅徒歩 | : |
セキュリティ: | |
建物設備: | |
築年数: | |
駅徒歩: |
物件名 | アトラス白山 | ||
---|---|---|---|
住所 | 東京都文京区本駒込1丁目1-27 | ||
最寄駅 |
東京メトロ南北線 本駒込駅 徒歩2分 都営三田線 白山駅 徒歩3分 東京メトロ南北線 東大前駅 徒歩9分 |
||
学区 | 駒本小学校 | ||
構造 | RC | 総階数 | 地上15階建て 地下1階 |
賃料 | 148,000円~170,000円 | 管理費 | 0円~10,000円 |
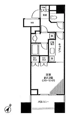
間取り | 1K~1LDK | 面積 | 32.94㎡~40.40㎡ |
駐車場 | 無 | 築年月 | 2008年02月 |
問合番号 | 50110 | 更新日 | 2025/10/25 |
設備 | オートロック、法人契約相談可、駐輪場有、宅配BOX、コンビニ近、BS・CS、CATV、光ファイバー、インターネット対応、専用ゴミ置場、防犯カメラ、TVモニター付インターホン、分譲賃貸、東京大学徒歩圏、東京大学自転車圏、エレベーター、駒本小学校エリア、2階以上、コンロ二口以上、ガスキッチン、システムキッチン、エアコン、フローリング、浴室乾燥、ウォシュレット、バストイレ別、室内洗濯機置場、収納 | ||
備考 | 詳細閲覧ありがとうございます。最新の空室の確認、内覧のご予約はメール・電話にてお問い合わせください。 文京区の賃貸マンション・賃貸アパートはベステックスにおまかせください! |
所在階 | 間取り | 面積 | 賃料 | 管理費 | 敷金 | 礼金 | お問い合わせ | ||||
---|---|---|---|---|---|---|---|---|---|---|---|
2階 | 1K | 23.74㎡ | … | … | … | … | 契約済み | 所在階*** 間取り1K |
面積23.74㎡ 管理費*** |
敷金*** 礼金*** |
契約済み |
3階 | 1K | 22.88㎡ | … | … | … | … | 契約済み | 所在階*** 間取り1K |
面積22.88㎡ 管理費*** |
敷金*** 礼金*** |
契約済み |
3階 | 1K | 23.54㎡ | … | … | … | … | 契約済み | 所在階*** 間取り1K |
面積23.54㎡ 管理費*** |
敷金*** 礼金*** |
契約済み |
3階 | 1K | 23.96㎡ | … | … | … | … | 契約済み | 所在階*** 間取り1K |
面積23.96㎡ 管理費*** |
敷金*** 礼金*** |
契約済み |
4階 | 1K | 21.00㎡ | … | … | … | … | 契約済み | 所在階*** 間取り1K |
面積21.00㎡ 管理費*** |
敷金*** 礼金*** |
契約済み |
4階 | 1K | 23.96㎡ | … | … | … | … | 契約済み | 所在階*** 間取り1K |
面積23.96㎡ 管理費*** |
敷金*** 礼金*** |
契約済み |
4階 | 1LDK | 47.44㎡ | … | … | … | … | 契約済み | 所在階*** 間取り1LDK |
面積47.44㎡ 管理費*** |
敷金*** 礼金*** |
契約済み |
5階 | 1K | 23.96㎡ | … | … | … | … | 契約済み | 所在階*** 間取り1K |
面積23.96㎡ 管理費*** |
敷金*** 礼金*** |
契約済み |
6階 | 1K | 23.54㎡ | … | … | … | … | 契約済み | 所在階*** 間取り1K |
面積23.54㎡ 管理費*** |
敷金*** 礼金*** |
契約済み |
6階 | 1DK | 30.27㎡ | … | … | … | … | 契約済み | 所在階*** 間取り1DK |
面積30.27㎡ 管理費*** |
敷金*** 礼金*** |
契約済み |
6階 | 1LDK | 40.01㎡ | … | … | … | … | 契約済み | 所在階*** 間取り1LDK |
面積40.01㎡ 管理費*** |
敷金*** 礼金*** |
契約済み |
8階 | 1K | 31.68㎡ | … | … | … | … | 契約済み | 所在階*** 間取り1K |
面積31.68㎡ 管理費*** |
敷金*** 礼金*** |
契約済み |
8階 | 1K | 32.94㎡ | … | … | … | … | 契約済み | 所在階*** 間取り1K |
面積32.94㎡ 管理費*** |
敷金*** 礼金*** |
契約済み |
8階 | 1LDK | 40.36㎡ | … | … | … | … | 契約済み | 所在階*** 間取り1LDK |
面積40.36㎡ 管理費*** |
敷金*** 礼金*** |
契約済み |
9階 | 1SLDK | 56.66㎡ | … | … | … | … | 契約済み | 所在階*** 間取り1SLDK |
面積56.66㎡ 管理費*** |
敷金*** 礼金*** |
契約済み |
10階 | 1DK | 31.68㎡ | … | … | … | … | 契約済み | 所在階*** 間取り1DK |
面積31.68㎡ 管理費*** |
敷金*** 礼金*** |
契約済み |
10階 | 1LDK | 45.45㎡ | … | … | … | … | 契約済み | 所在階*** 間取り1LDK |
面積45.45㎡ 管理費*** |
敷金*** 礼金*** |
契約済み |
11階 | 1K | 31.68㎡ | … | … | … | … | 契約済み | 所在階*** 間取り1K |
面積31.68㎡ 管理費*** |
敷金*** 礼金*** |
契約済み |
11階 | 1LDK | 40.36㎡ | … | … | … | … | 契約済み | 所在階*** 間取り1LDK |
面積40.36㎡ 管理費*** |
敷金*** 礼金*** |
契約済み |
11階 | 1SLDK | 56.66㎡ | … | … | … | … | 契約済み | 所在階*** 間取り1SLDK |
面積56.66㎡ 管理費*** |
敷金*** 礼金*** |
契約済み |
12階 | 1LDK | 41.88㎡ | … | … | … | … | 契約済み | 所在階*** 間取り1LDK |
面積41.88㎡ 管理費*** |
敷金*** 礼金*** |
契約済み |
13階 | 3LDK | 75.09㎡ | … | … | … | … | 契約済み | 所在階*** 間取り3LDK |
面積75.09㎡ 管理費*** |
敷金*** 礼金*** |
契約済み |
13階 | 2LDK | 58.68㎡ | … | … | … | … | 契約済み | 所在階*** 間取り2LDK |
面積58.68㎡ 管理費*** |
敷金*** 礼金*** |
契約済み |