本郷パークホームズの賃貸情報
06/02本郷パークホームズの賃貸情報
06/02
本郷パークホームズの総合評価
総合評価
3
3
| セキュリティ | : |
築年数 | : |
| 建物設備 | : |
駅徒歩 | : |
| セキュリティ: | |
| 建物設備: | |
| 築年数: | |
| 駅徒歩: |
この物件について
| 物件名 | 本郷パークホームズ | ||
|---|---|---|---|
| 住所 | 東京都文京区本郷2-31-11 | ||
| 最寄駅 |
東京メトロ丸ノ内線 本郷三丁目駅 徒歩4分 都営三田線 水道橋駅 徒歩5分 JR中央・総武線 水道橋駅 徒歩8分 |
||
| 学区 | 本郷小学校 | ||
| 構造 | SRC | 総階数 | 地上13階建て |
| 賃料 | 管理費 | ||
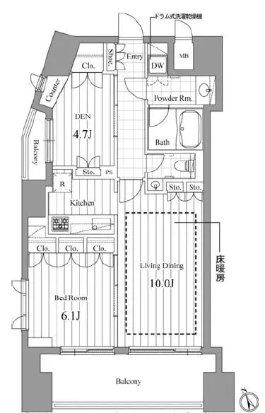
| 間取り | 面積 | ||
| 駐車場 | 要確認 | 築年月 | 1999年06月 |
| 問合番号 | 23819 | 更新日 | 2022/06/02 |
| 設備 | オートロック、駐車場有、駐輪場有、宅配BOX、コンビニ近、BS・CS、CATV、光ファイバー、インターネット対応、専用ゴミ置場、防犯カメラ、TVモニター付インターホン、分譲賃貸、東京大学徒歩圏、エレベーター、本郷小学校エリア、コンロ二口以上、ガスキッチン、システムキッチン、エアコン、フローリング、独立洗面台、追い焚き機能、浴室乾燥、バストイレ別、室内洗濯機置場、収納、法人契約相談可 | ||
| 備考 | 本郷パークホームズの賃貸マンション情報♪ 詳細閲覧ありがとうございます。最新の空室の確認、内覧のご予約はメール・電話にてお問い合わせください。 文京区の賃貸マンション・賃貸アパートはベステックスにおまかせください! | ||
物件概要
文京区本郷2丁目、大通りから離れた落ち着いた環境ながらも駅からもほど近い好立地に佇む、三井不動産株式会社の旧分譲マンション【本郷パークホームズ】をご紹介します。
1999年8月築の鉄骨鉄筋コンクリート造地上13階建て分譲マンション。高級分譲マンションならではの充実した各種設備・仕様で快適な生活をサポートしてくれます♪
敷地内には駐輪場はもちろん、駐車場も完備(空き状況・料金など要確認)!24時間利用可能なゴミ置き場など、毎日の生活で便利な設備も整っています!
共用部分には防犯カメラをはじめ、エントランスのオートロック・TVモニター付きインターホンなどが備わっているのでセキュリティ体制についても安心の内容です♪
また、宅配ボックスも完備しており、こちらは不在時に届いた荷物も預けて置けるので忙しい方を中心に必要とする方も多いです!
建物内には2LDKや3LDKといったファミリー向けの間取りを主に揃えています。物件は人気のある『本郷小学校』の学区域でもあるので、お子様の入学を控えたファミリーにもオススメです♪
アクセス面に関しては、最寄り駅の東京メトロ丸ノ内線・都営大江戸線『本郷三丁目駅』まで徒歩4分。都営三田線『水道橋駅』が徒歩5分、JR中央総武線『水道橋駅』が徒歩8分というように、徒歩圏内で多数の駅・路線が利用可能!
『本郷三丁目駅』からは丸ノ内線で『大手町駅』『東京駅』が5,6分、大江戸線で『新宿西口駅』が15分、『汐留駅』『麻布十番駅』『六本木駅』も乗り換え無しの一本でアクセス可能です♪
都心部への通勤もしやすく非常に便利!
買い物面に関しては、すぐ近くにはスーパーマーケット『マルエツプチ』『まいばすけっと』や、コンビニ『ファミリーマート』、更に各種銀行もあるので、日々のお買い物や生活にも困りません!また、本郷三丁目駅前にはドラッグストア『くすりの福太郎』も御座います。
また、徒歩圏内には他にもディスカウント『ドン・キホーテ』や、総合アミューズメント施設『東京ドームシティ・LaQua』があり、ショップ・レストラン・アトラクションズも揃っているので一日中楽しく過ごせます!
人気の本郷アドレスの高級分譲マンション、是非お問い合わせください!
1999年8月築の鉄骨鉄筋コンクリート造地上13階建て分譲マンション。高級分譲マンションならではの充実した各種設備・仕様で快適な生活をサポートしてくれます♪
敷地内には駐輪場はもちろん、駐車場も完備(空き状況・料金など要確認)!24時間利用可能なゴミ置き場など、毎日の生活で便利な設備も整っています!
共用部分には防犯カメラをはじめ、エントランスのオートロック・TVモニター付きインターホンなどが備わっているのでセキュリティ体制についても安心の内容です♪
また、宅配ボックスも完備しており、こちらは不在時に届いた荷物も預けて置けるので忙しい方を中心に必要とする方も多いです!
建物内には2LDKや3LDKといったファミリー向けの間取りを主に揃えています。物件は人気のある『本郷小学校』の学区域でもあるので、お子様の入学を控えたファミリーにもオススメです♪
アクセス面に関しては、最寄り駅の東京メトロ丸ノ内線・都営大江戸線『本郷三丁目駅』まで徒歩4分。都営三田線『水道橋駅』が徒歩5分、JR中央総武線『水道橋駅』が徒歩8分というように、徒歩圏内で多数の駅・路線が利用可能!
『本郷三丁目駅』からは丸ノ内線で『大手町駅』『東京駅』が5,6分、大江戸線で『新宿西口駅』が15分、『汐留駅』『麻布十番駅』『六本木駅』も乗り換え無しの一本でアクセス可能です♪
都心部への通勤もしやすく非常に便利!
買い物面に関しては、すぐ近くにはスーパーマーケット『マルエツプチ』『まいばすけっと』や、コンビニ『ファミリーマート』、更に各種銀行もあるので、日々のお買い物や生活にも困りません!また、本郷三丁目駅前にはドラッグストア『くすりの福太郎』も御座います。
また、徒歩圏内には他にもディスカウント『ドン・キホーテ』や、総合アミューズメント施設『東京ドームシティ・LaQua』があり、ショップ・レストラン・アトラクションズも揃っているので一日中楽しく過ごせます!
人気の本郷アドレスの高級分譲マンション、是非お問い合わせください!
掲載情報について
※随時更新を心がけておりますが、掲載している物件が万が一成約している場合もございますので予めご了承下さいませ。
※駐車場・駐輪場・バイク置場の空き状況についてはお問い合わせ下さい。
※ペット飼育やSOHO利用・楽器使用の可否に関しては、建物の管理規約で可能になっていても、お部屋の所有者様によって禁止の場合もございますので御注意下さい。
詳細はメールやお電話にてスタッフまでご相談下さい。
※駐車場・駐輪場・バイク置場の空き状況についてはお問い合わせ下さい。
※ペット飼育やSOHO利用・楽器使用の可否に関しては、建物の管理規約で可能になっていても、お部屋の所有者様によって禁止の場合もございますので御注意下さい。
詳細はメールやお電話にてスタッフまでご相談下さい。
本郷パークホームズの周辺地図
本郷パークホームズのご成約済み部屋一覧
| 所在階 | 間取り | 面積 | 賃料 | 管理費 | 敷金 | 礼金 | お問い合わせ | ||||
|---|---|---|---|---|---|---|---|---|---|---|---|
| 1階 | 2LDK | 61.71㎡ | … | … | … | … | 契約済み | 所在階*** 間取り2LDK |
面積61.71㎡ 管理費*** |
敷金*** 礼金*** |
契約済み |
| 5階 | 3LDK | 68.33㎡ | … | … | … | … | 契約済み | 所在階*** 間取り3LDK |
面積68.33㎡ 管理費*** |
敷金*** 礼金*** |
契約済み |
| 6階 | 2LDK | 61.71㎡ | … | … | … | … | 契約済み | 所在階*** 間取り2LDK |
面積61.71㎡ 管理費*** |
敷金*** 礼金*** |
契約済み |
| 8階 | 3LDK | 74.49㎡ | … | … | … | … | 契約済み | 所在階*** 間取り3LDK |
面積74.49㎡ 管理費*** |
敷金*** 礼金*** |
契約済み |
| 9階 | 3LDK | 68.33㎡ | … | … | … | … | 契約済み | 所在階*** 間取り3LDK |
面積68.33㎡ 管理費*** |
敷金*** 礼金*** |
契約済み |
| 10階 | 1LDK | 51.99㎡ | … | … | … | … | 契約済み | 所在階*** 間取り1LDK |
面積51.99㎡ 管理費*** |
敷金*** 礼金*** |
契約済み |
| 13階 | 2LDK | 60.45㎡ | … | … | … | … | 契約済み | 所在階*** 間取り2LDK |
面積60.45㎡ 管理費*** |
敷金*** 礼金*** |
契約済み |


















