デュオ・スカーラ上野の賃貸情報
08/20デュオ・スカーラ上野の賃貸情報
08/20
デュオ・スカーラ上野の総合評価
総合評価
3
3
| セキュリティ | : |
築年数 | : |
| 建物設備 | : |
駅徒歩 | : |
| セキュリティ: | |
| 建物設備: | |
| 築年数: | |
| 駅徒歩: |
この物件について
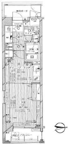
| 物件名 | デュオ・スカーラ上野 | ||
|---|---|---|---|
| 住所 | 東京都台東区上野1-2-12 | ||
| 最寄駅 |
東京メトロ千代田線 湯島駅 徒歩3分 都営大江戸線 上野御徒町駅 徒歩4分 JR山手線 御徒町駅 徒歩6分 |
||
| 学区 | |||
| 構造 | SRC | 総階数 | 地上11階建て |
| 賃料 | 管理費 | ||
| 間取り | 面積 | ||
| 駐車場 | 築年月 | 2002年07月 | |
| 問合番号 | 56 | 更新日 | 2022/08/20 |
| 設備 | オートロック、駐輪場有、宅配BOX、コンビニ近、BS・CS、CATV、光ファイバー、インターネット対応、専用ゴミ置場、防犯カメラ、TVモニター付インターホン、分譲賃貸、東京大学徒歩圏、東京大学自転車圏、ペット可、エレベーター、コンロ二口以上、ガスキッチン、システムキッチン、エアコン、フローリング、独立洗面台、追い焚き機能、浴室乾燥、ウォシュレット、バストイレ別、室内洗濯機置場、収納、2人入居可、保証会社利用、楽器相談可、SOHO可、法人契約相談可 | ||
| 備考 | デュオ・スカーラ上野の賃貸マンション情報です♪ ※保証人不要システム利用必須 エポスカード(ROOMID) 初回保証料:総賃料の40% 年間保証料:8,000円 詳細閲覧ありがとうございます。最新の空室の確認、内覧のご予約はメール・電話にてお問い合わせください。 文京区の賃貸マンション・賃貸アパートはベステックスにおまかせください! | ||
物件概要
台東区上野1丁目に佇むペット可・楽器相談高級分譲賃貸マンション【デュオ・スカーラ上野】
2002年7月築の鉄骨鉄筋コンクリート造地上11階建て分譲マンション。
千代田線湯島駅徒歩3分、大江戸線上野御徒町駅徒歩4分、山手線御徒町駅徒歩6分の好立地♪
アメ横・デパート・飲食店至近♪お買い物大変便利です!
分譲賃貸ならではのハイグレード仕様・設備。
オートロック・TVモニター付インターフォン完備で安心セキュリティ♪
是非ご覧下さい!
2002年7月築の鉄骨鉄筋コンクリート造地上11階建て分譲マンション。
千代田線湯島駅徒歩3分、大江戸線上野御徒町駅徒歩4分、山手線御徒町駅徒歩6分の好立地♪
アメ横・デパート・飲食店至近♪お買い物大変便利です!
分譲賃貸ならではのハイグレード仕様・設備。
オートロック・TVモニター付インターフォン完備で安心セキュリティ♪
是非ご覧下さい!
掲載情報について
※随時更新を心がけておりますが、掲載している物件が万が一成約している場合もございますので予めご了承下さいませ。
※駐車場・駐輪場・バイク置場の空き状況についてはお問い合わせ下さい。
※ペット飼育やSOHO利用・楽器使用の可否に関しては、建物の管理規約で可能になっていても、お部屋の所有者様によって禁止の場合もございますので御注意下さい。
詳細はメールやお電話にてスタッフまでご相談下さい。
※駐車場・駐輪場・バイク置場の空き状況についてはお問い合わせ下さい。
※ペット飼育やSOHO利用・楽器使用の可否に関しては、建物の管理規約で可能になっていても、お部屋の所有者様によって禁止の場合もございますので御注意下さい。
詳細はメールやお電話にてスタッフまでご相談下さい。
デュオ・スカーラ上野の周辺地図
デュオ・スカーラ上野のご成約済み部屋一覧
| 所在階 | 間取り | 面積 | 賃料 | 管理費 | 敷金 | 礼金 | お問い合わせ | ||||
|---|---|---|---|---|---|---|---|---|---|---|---|
| 4階 | 1DK | 33.47㎡ | … | … | … | … | 契約済み | 所在階*** 間取り1DK |
面積33.47㎡ 管理費*** |
敷金*** 礼金*** |
契約済み |
| 8階 | 1DK | 33.47㎡ | … | … | … | … | 契約済み | 所在階*** 間取り1DK |
面積33.47㎡ 管理費*** |
敷金*** 礼金*** |
契約済み |
| 9階 | 1DK | 33.47㎡ | … | … | … | … | 契約済み | 所在階*** 間取り1DK |
面積33.47㎡ 管理費*** |
敷金*** 礼金*** |
契約済み |
| 10階 | 1DK | 33.47㎡ | … | … | … | … | 契約済み | 所在階*** 間取り1DK |
面積33.47㎡ 管理費*** |
敷金*** 礼金*** |
契約済み |
| 10階 | 1DK | 33.47㎡ | … | … | … | … | 契約済み | 所在階*** 間取り1DK |
面積33.47㎡ 管理費*** |
敷金*** 礼金*** |
契約済み |









