デュオ・スカーラ御茶ノ水Ⅱの賃貸情報
05/14デュオ・スカーラ御茶ノ水Ⅱの賃貸情報
05/14
デュオ・スカーラ御茶ノ水Ⅱの総合評価
総合評価
3
3
| セキュリティ | : |
築年数 | : |
| 建物設備 | : |
駅徒歩 | : |
| セキュリティ: | |
| 建物設備: | |
| 築年数: | |
| 駅徒歩: |
この物件について
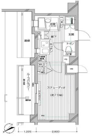
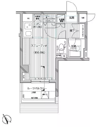
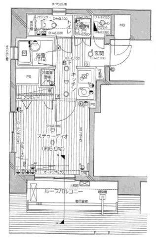
| 物件名 | デュオ・スカーラ御茶ノ水Ⅱ | ||
|---|---|---|---|
| 住所 | 東京都千代田区神田淡路町1丁目17-1 | ||
| 最寄駅 |
東京メトロ丸ノ内線 淡路町駅 徒歩1分 東京メトロ千代田線 新御茶ノ水駅 徒歩1分 都営新宿線 小川町駅 徒歩1分 |
||
| 学区 | |||
| 構造 | RC | 総階数 | 地上8階建て |
| 賃料 | 管理費 | ||
| 間取り | 面積 | ||
| 駐車場 | 無 | 築年月 | 2004年01月 |
| 問合番号 | 29389 | 更新日 | 2016/05/14 |
| 設備 | オートロック、駐輪場有、宅配BOX、コンビニ近、BS・CS、CATV、光ファイバー、インターネット対応、専用ゴミ置場、TVモニター付インターホン、分譲賃貸、東京大学自転車圏、ペット可、エレベーター、コンロ二口以上、ガスキッチン、システムキッチン、エアコン、フローリング、浴室乾燥、バストイレ別、室内洗濯機置場、収納、楽器相談可、法人契約相談可 | ||
| 備考 | 千代田区神田淡路町1丁目のペット・楽器相談可分譲賃貸マンション【デュオ・スカーラ御茶ノ水Ⅱ】のご紹介です。 詳細閲覧ありがとうございます。最新の空室の確認、内覧のご予約はメール・電話にてお問い合わせください。 文京区の賃貸マンション・賃貸アパートはベステックスにおまかせください! | ||
物件概要
千代田区神田淡路町1丁目の分譲賃貸マンション【デュオ・スカーラ御茶ノ水Ⅱ】のご紹介です。
2004年1月築の鉄筋コンクリート造地上8階建て分譲マンション。
利用可能路線は東京メトロ丸ノ内線「淡路町」駅徒歩1分、東京メトロ千代田線「新御茶ノ水」駅徒歩1分、都営新宿線「小川町」駅徒歩1分、と複数路線がすべて1分という驚異的な立地!どこへ行くにも便利で少し歩くと他の路線も使えるまさに都会の魅力です!
分譲マンションならではのハイグレード仕様・設備。
オートロック・TVモニター付インターフォン・宅配ボックス完備で安心セキュリティ。
エアコン、ガス2口システムキッチン、浴室乾燥機、給湯追焚き機能、ウォシュレット完備。
24時間ゴミ置き場も完備!
周辺環境は生活に困らない施設が揃っております。
・スーパー Olympic淡路町店 256m マルエツプチ神田司町店 271m 成城石井御茶ノ水ソラシティ店 315m
・コンビニ サンクス都営小川町店 94m ファミリーマート神田淡路町二丁目店 103m サンクス都営小川町店 112m
・ドラッグストア ファミリーマート+薬ヒグチ淡路町店 126m くすりの福太郎神田小川町店 197m
・病院 神尾記念病院 149m
大きな買い物は電車やカーシェアリングで簡単にいけるアクセスの良さが魅力的♪
是非一度ご覧下さい。
2004年1月築の鉄筋コンクリート造地上8階建て分譲マンション。
利用可能路線は東京メトロ丸ノ内線「淡路町」駅徒歩1分、東京メトロ千代田線「新御茶ノ水」駅徒歩1分、都営新宿線「小川町」駅徒歩1分、と複数路線がすべて1分という驚異的な立地!どこへ行くにも便利で少し歩くと他の路線も使えるまさに都会の魅力です!
分譲マンションならではのハイグレード仕様・設備。
オートロック・TVモニター付インターフォン・宅配ボックス完備で安心セキュリティ。
エアコン、ガス2口システムキッチン、浴室乾燥機、給湯追焚き機能、ウォシュレット完備。
24時間ゴミ置き場も完備!
周辺環境は生活に困らない施設が揃っております。
・スーパー Olympic淡路町店 256m マルエツプチ神田司町店 271m 成城石井御茶ノ水ソラシティ店 315m
・コンビニ サンクス都営小川町店 94m ファミリーマート神田淡路町二丁目店 103m サンクス都営小川町店 112m
・ドラッグストア ファミリーマート+薬ヒグチ淡路町店 126m くすりの福太郎神田小川町店 197m
・病院 神尾記念病院 149m
大きな買い物は電車やカーシェアリングで簡単にいけるアクセスの良さが魅力的♪
是非一度ご覧下さい。
掲載情報について
※随時更新を心がけておりますが、掲載している物件が万が一成約している場合もございますので予めご了承下さいませ。
※駐車場・駐輪場・バイク置場の空き状況についてはお問い合わせ下さい。
※ペット飼育やSOHO利用・楽器使用の可否に関しては、建物の管理規約で可能になっていても、お部屋の所有者様によって禁止の場合もございますので御注意下さい。
詳細はメールやお電話にてスタッフまでご相談下さい。
※駐車場・駐輪場・バイク置場の空き状況についてはお問い合わせ下さい。
※ペット飼育やSOHO利用・楽器使用の可否に関しては、建物の管理規約で可能になっていても、お部屋の所有者様によって禁止の場合もございますので御注意下さい。
詳細はメールやお電話にてスタッフまでご相談下さい。















