スタッフのコメント
瓦海
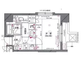
文京区本郷一丁目に立地する【パレステュディオ本郷後楽園】は、鉄骨鉄筋コンクリート造12階建て、2001年築の分譲賃貸マンションです。都営三田線・大江戸線「春日」駅徒歩3分、丸ノ内線・大江戸線「後楽園」駅徒歩6分と、3駅5路線が利用可能な好アクセスのロケーションが魅力。周辺には文京区役所の入るシビックセンターや東京ドーム、ラクーア、小石川後楽園といった地域のランドマークが集まり、利便性と自然の潤いを兼ね備えた住環境が広がります。さらに成城石井やクイーンズ伊勢丹などの高品質スーパー、ディスカウントショップ、コンビニ、書店、クリーニング店、飲食店も豊富に揃い、暮らしやすさも抜群です。建物はTVモニター付きオートロックや監視カメラを完備し、敷地内ゴミ置場は24時間利用可能。分譲マンションならではの高級感と快適さが感じられる設備も魅力です。是非一度ご内見ください。











