キーワード検索

ステージグランデ文京大塚の賃貸情報

   10/09

ステージグランデ文京大塚の賃貸情報


  10/09
1/10
募集中の部屋一覧
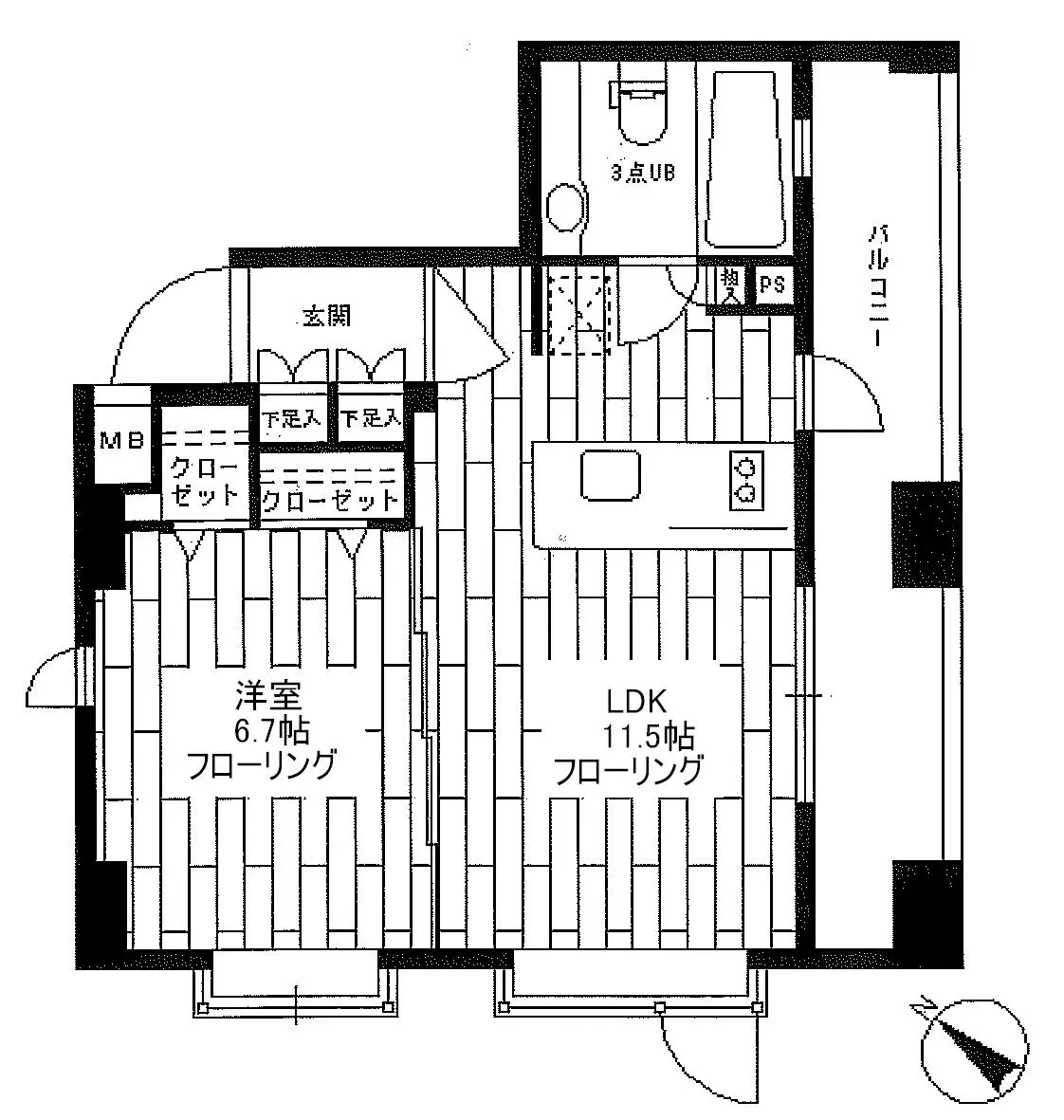
間取図 所在階 間取り 面積 賃料 管理費 敷金 礼金  
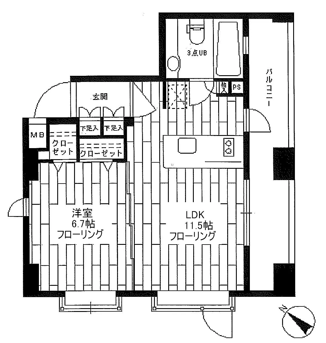
10階 1K 21.82㎡ 100,000円 10,000円 0ヶ月 1ヶ月 所在階: 10階
面積: 21.82㎡
間取り: 1K
100,000円
管理費: 10,000円
敷金: 0ヶ月
礼金: 1ヶ月
お気に入り お問い合わせ

スタッフのコメント

スタッフ画像 内村慎吾
お茶の水女子大学の目の前に佇む【ステージグランデ文京大塚】は、2005年8月築の地上11階建て、鉄筋コンクリート造の分譲マンションです。その外観は、周囲の文教エリアにふさわしい落ち着いた色調で統一されており、流行に左右されない品格と重厚感を漂わせています。建物のファサードは、シンプルでありながらも計算されたデザインで、洗練された都会的な雰囲気を醸し出しています。清掃が行き届いた清潔感は、分譲マンションならではの質の高さを物語っており、住む人々の誇りとなるでしょう。エントランスへと続くアプローチも丁寧に造り込まれており、住まいの顔としてふさわしい高級感を演出しています。また、外観デザインだけでなく、機能面も充実しています。エントランスにはオートロックが完備され、来訪者の確認ができるTVモニター付きインターホンも設置されており、セキュリティ面でも安心です。さらに、不在時でも荷物の受け取りができる宅配ボックスも完備。美しいデザインと高い機能性を両立させた【ステージグランデ文京大塚】は、この街で暮らす人々の快適な生活を支える、上質な住まいです。

ステージグランデ文京大塚の総合評価
総合評価
3.5
セキュリティ ★★★★☆   築年数 ★★★☆☆  
建物設備 ★★★★☆   駅徒歩 ★★★☆☆  
セキュリティ:    ★★★★☆
建物設備: ★★★★☆
築年数: ★★★☆☆
駅徒歩: ★★★☆☆

この物件について

物件名ステージグランデ文京大塚
住所東京都文京区大塚3-8-1
最寄駅 東京メトロ丸ノ内線 茗荷谷駅 徒歩6分
東京メトロ有楽町線 護国寺駅 徒歩9分
学区窪町小学校
構造RC 総階数地上11階建て 
賃料100,000円 管理費10,000円
間取り1K 面積21.82㎡
駐車場 築年月2005年08月
問合番号18953 更新日2025/10/09
設備オートロック、法人契約相談可、駐輪場有、宅配BOX、コンビニ近、BS・CS、光ファイバー、インターネット対応、専用ゴミ置場、防犯カメラ、TVモニター付インターホン、分譲賃貸、エレベーター、窪町小学校エリア、コンロ二口以上、ガスキッチン、システムキッチン、エアコン、フローリング、浴室乾燥、ウォシュレット、室内洗濯機置場、収納
備考≪ステージグランデ文京大塚、お部屋の貸し出し希望のオーナー様・所有者様こちらへ!≫ 
詳細閲覧ありがとうございます。最新の空室の確認、内覧のご予約はメール・電話にてお問い合わせください。 文京区の賃貸マンション・賃貸アパートはベステックスにおまかせください!

物件概要

文京区大塚3丁目、お茶の水女子大学の目の前に佇む高級分譲マンション【ステージグランデ文京大塚】のご紹介です!

最寄り駅を通る丸ノ内線の便利さや、有名大学・国立学校、公園の緑や自然、豊富な種類のお店など、文京区内でも住みやすさの光る人気エリア『茗荷谷』♪

最寄り駅の東京メトロ丸ノ内線『茗荷谷駅』からは春日通り沿いを真っ直ぐ一本、徒歩6分のところにあり、駅からは大通り沿いのアクセスなので夜の帰り道も安心♪
東京メトロ有楽町線『護国寺駅』も徒歩9分で利用可能です。

1LDKタイプの間取りもありますが、多数を1Kタイプが占めているマンションなので、丸ノ内線利用の会社員の方などに人気です!
文教エリアということで周辺には、目の前の『お茶の水女子大学』をはじめ『跡見学園女子大学』『拓殖大学』といった有名大学があるので、学生さんにもオススメです♪

茗荷谷駅からは乗り換え無しで『大手町駅』まで10分以内、『東京駅』『銀座駅』が15分以内、『霞ヶ関駅』は20分以内でアクセスが可能なので都心に勤務の方にもちょうど良い立地。反対方面の『池袋駅』には5分以内でアクセス可能なので、交通の便も良好です!

また、茗荷谷駅前にはスーパーマーケット『三徳』や『マルエツプチ』をはじめ、多くの飲食店やコンビニ・ドラッグストア・銀行などが揃っているので非常に便利です!駅前で買い物してから帰宅、といった生活がイメージしやすいです♪

建物は2005年8月築、鉄筋コンクリート造地上11階建て。分譲マンションということでハイグレード仕様になっています♪
高級感のある綺麗なエントランスには当然オートロックを完備!TVモニター付きインターホンも付いているので、室内にいながら来客の顔も確認できます♪
さらに、宅配ボックスや専用のゴミ置き場といった人気の共用設備も揃っています!

室内も共用設備と同様に充実した内容で、快適な暮らしをサポートします!

是非お問い合わせください!

掲載情報について

※随時更新を心がけておりますが、掲載している物件が万が一成約している場合もございますので予めご了承下さいませ。
※駐車場・駐輪場・バイク置場の空き状況についてはお問い合わせ下さい。
※ペット飼育やSOHO利用・楽器使用の可否に関しては、建物の管理規約で可能になっていても、お部屋の所有者様によって禁止の場合もございますので御注意下さい。
詳細はメールやお電話にてスタッフまでご相談下さい。

ステージグランデ文京大塚の周辺地図

ステージグランデ文京大塚のご成約済み部屋一覧

所在階 間取り 面積 賃料 管理費 敷金 礼金 お問い合わせ
2階 1K 21.62㎡ 契約済み 所在階: ***
間取り: 1K
面積: 21.62㎡
管理費: ***
敷金: ***
礼金: ***
契約済み
2階 1K 21.82㎡ 契約済み 所在階: ***
間取り: 1K
面積: 21.82㎡
管理費: ***
敷金: ***
礼金: ***
契約済み
3階 1K 21.62㎡ 契約済み 所在階: ***
間取り: 1K
面積: 21.62㎡
管理費: ***
敷金: ***
礼金: ***
契約済み
3階 1K 21.82㎡ 契約済み 所在階: ***
間取り: 1K
面積: 21.82㎡
管理費: ***
敷金: ***
礼金: ***
契約済み
3階 1LDK 38.84㎡ 契約済み 所在階: ***
間取り: 1LDK
面積: 38.84㎡
管理費: ***
敷金: ***
礼金: ***
契約済み
4階 1K 21.62㎡ 契約済み 所在階: ***
間取り: 1K
面積: 21.62㎡
管理費: ***
敷金: ***
礼金: ***
契約済み
4階 1K 21.82㎡ 契約済み 所在階: ***
間取り: 1K
面積: 21.82㎡
管理費: ***
敷金: ***
礼金: ***
契約済み
4階 1K 21.82㎡ 契約済み 所在階: ***
間取り: 1K
面積: 21.82㎡
管理費: ***
敷金: ***
礼金: ***
契約済み
4階 1K 21.82㎡ 契約済み 所在階: ***
間取り: 1K
面積: 21.82㎡
管理費: ***
敷金: ***
礼金: ***
契約済み
4階 1LDK 38.84㎡ 契約済み 所在階: ***
間取り: 1LDK
面積: 38.84㎡
管理費: ***
敷金: ***
礼金: ***
契約済み
5階 1K 21.62㎡ 契約済み 所在階: ***
間取り: 1K
面積: 21.62㎡
管理費: ***
敷金: ***
礼金: ***
契約済み
5階 1K 21.62㎡ 契約済み 所在階: ***
間取り: 1K
面積: 21.62㎡
管理費: ***
敷金: ***
礼金: ***
契約済み
5階 1K 21.82㎡ 契約済み 所在階: ***
間取り: 1K
面積: 21.82㎡
管理費: ***
敷金: ***
礼金: ***
契約済み
5階 1LDK 38.84㎡ 契約済み 所在階: ***
間取り: 1LDK
面積: 38.84㎡
管理費: ***
敷金: ***
礼金: ***
契約済み
6階 1K 21.82㎡ 契約済み 所在階: ***
間取り: 1K
面積: 21.82㎡
管理費: ***
敷金: ***
礼金: ***
契約済み
6階 1K 21.62㎡ 契約済み 所在階: ***
間取り: 1K
面積: 21.62㎡
管理費: ***
敷金: ***
礼金: ***
契約済み
6階 1K 21.82㎡ 契約済み 所在階: ***
間取り: 1K
面積: 21.82㎡
管理費: ***
敷金: ***
礼金: ***
契約済み
6階 1LDK 38.84㎡ 契約済み 所在階: ***
間取り: 1LDK
面積: 38.84㎡
管理費: ***
敷金: ***
礼金: ***
契約済み
6階 1LDK 38.84㎡ 契約済み 所在階: ***
間取り: 1LDK
面積: 38.84㎡
管理費: ***
敷金: ***
礼金: ***
契約済み
7階 1K 21.62㎡ 契約済み 所在階: ***
間取り: 1K
面積: 21.62㎡
管理費: ***
敷金: ***
礼金: ***
契約済み
7階 1K 21.62㎡ 契約済み 所在階: ***
間取り: 1K
面積: 21.62㎡
管理費: ***
敷金: ***
礼金: ***
契約済み
7階 1LDK 38.84㎡ 契約済み 所在階: ***
間取り: 1LDK
面積: 38.84㎡
管理費: ***
敷金: ***
礼金: ***
契約済み
8階 1K 21.82㎡ 契約済み 所在階: ***
間取り: 1K
面積: 21.82㎡
管理費: ***
敷金: ***
礼金: ***
契約済み
8階 1K 21.82㎡ 契約済み 所在階: ***
間取り: 1K
面積: 21.82㎡
管理費: ***
敷金: ***
礼金: ***
契約済み
8階 1K 21.62㎡ 契約済み 所在階: ***
間取り: 1K
面積: 21.62㎡
管理費: ***
敷金: ***
礼金: ***
契約済み
8階 1K 21.82㎡ 契約済み 所在階: ***
間取り: 1K
面積: 21.82㎡
管理費: ***
敷金: ***
礼金: ***
契約済み
9階 1K 21.62㎡ 契約済み 所在階: ***
間取り: 1K
面積: 21.62㎡
管理費: ***
敷金: ***
礼金: ***
契約済み
9階 1K 21.82㎡ 契約済み 所在階: ***
間取り: 1K
面積: 21.82㎡
管理費: ***
敷金: ***
礼金: ***
契約済み
9階 1LDK 38.84㎡ 契約済み 所在階: ***
間取り: 1LDK
面積: 38.84㎡
管理費: ***
敷金: ***
礼金: ***
契約済み
10階 1K 21.62㎡ 契約済み 所在階: ***
間取り: 1K
面積: 21.62㎡
管理費: ***
敷金: ***
礼金: ***
契約済み
10階 1K 21.82㎡ 契約済み 所在階: ***
間取り: 1K
面積: 21.82㎡
管理費: ***
敷金: ***
礼金: ***
契約済み
10階 1LDK 38.84㎡ 契約済み 所在階: ***
間取り: 1LDK
面積: 38.84㎡
管理費: ***
敷金: ***
礼金: ***
契約済み
11階 1K 21.62㎡ 契約済み 所在階: ***
間取り: 1K
面積: 21.62㎡
管理費: ***
敷金: ***
礼金: ***
契約済み
11階 1K 21.82㎡ 契約済み 所在階: ***
間取り: 1K
面積: 21.82㎡
管理費: ***
敷金: ***
礼金: ***
契約済み
11階 1K 21.82㎡ 契約済み 所在階: ***
間取り: 1K
面積: 21.82㎡
管理費: ***
敷金: ***
礼金: ***
契約済み
11階 1LDK 38.84㎡ 契約済み 所在階: ***
間取り: 1LDK
面積: 38.84㎡
管理費: ***
敷金: ***
礼金: ***
契約済み
その他(全36件)を全て表示する

最近見た物件