メインステージ文京小石川の賃貸情報
05/24メインステージ文京小石川の賃貸情報
05/24
メインステージ文京小石川の総合評価
総合評価
3
3
| セキュリティ | : |
築年数 | : |
| 建物設備 | : |
駅徒歩 | : |
| セキュリティ: | |
| 建物設備: | |
| 築年数: | |
| 駅徒歩: |
この物件について
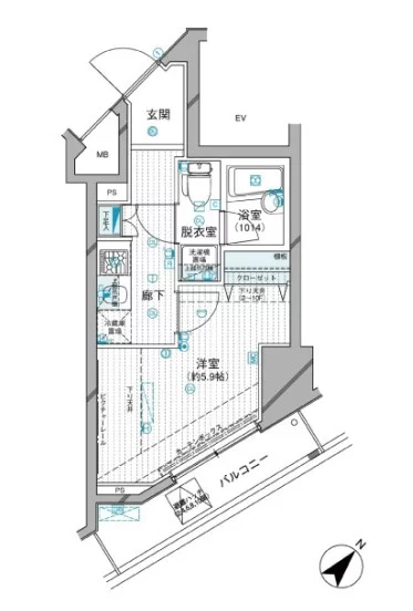
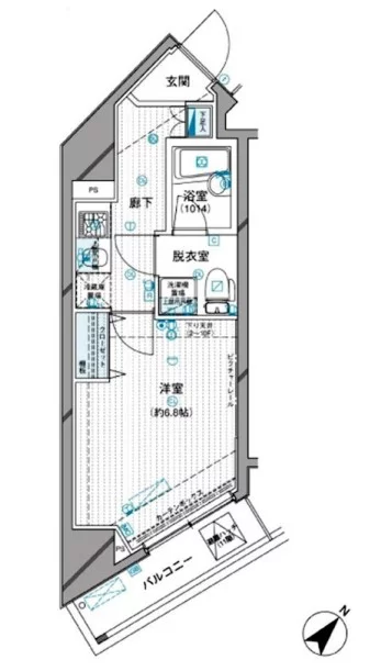
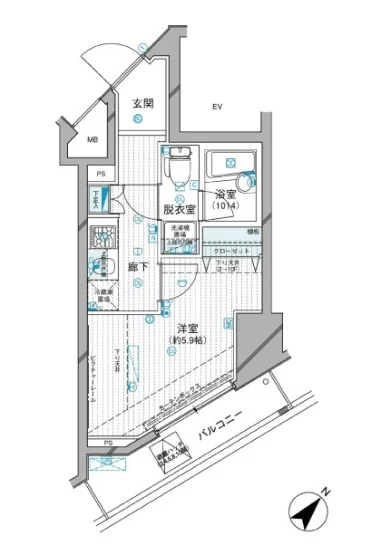
| 物件名 | メインステージ文京小石川 | ||
|---|---|---|---|
| 住所 | 東京都文京区小石川5丁目 41-14 | ||
| 最寄駅 |
東京メトロ丸ノ内線 茗荷谷駅 徒歩10分 都営三田線 白山駅 徒歩14分 都営大江戸線 春日駅 徒歩16分 |
||
| 学区 | 窪町小学校 | ||
| 構造 | RC | 総階数 | 地上11階建て |
| 賃料 | 管理費 | ||
| 間取り | 面積 | ||
| 駐車場 | 築年月 | 2008年11月 | |
| 問合番号 | 20240509 | 更新日 | 2024/05/24 |
| 設備 | オートロック、法人契約相談可、駐輪場有、宅配BOX、コンビニ近、インターネット対応、専用ゴミ置場、TVモニター付インターホン、分譲賃貸、東京大学自転車圏、窪町小学校エリア、コンロ二口以上、ガスキッチン、システムキッチン、エアコン、フローリング、浴室乾燥、ウォシュレット、バストイレ別、室内洗濯機置場、洗濯機置場あり、収納 | ||
| 備考 | 詳細閲覧ありがとうございます。最新の空室の確認、内覧のご予約はメール・電話にてお問い合わせください。 文京区の賃貸マンション・賃貸アパートはベステックスにおまかせください! | ||
物件概要
文京区小石川5丁目の分譲賃貸マンション【メインステージ文京小石川】のご紹介です!
2008年11月竣工!RC造11階建ての建物でございます。
窪町小学区のお部屋でございます。
~交通アクセス~
丸ノ内線 『茗荷谷』駅 徒歩10分
三田線 『白山』駅 徒歩14分
大江戸線 『春日』駅 徒歩16分
~周辺環境~
◇コンビニ
・ローソン 共同印刷本社店 徒歩1分
・セブンイレブン 文京植物園前店 徒歩2分
・セブンイレブン 文京小石川播磨坂店 徒歩5分
◇スーパー
・まいばすけっと 小石川植物園前店 徒歩1分
・肉のハナマサ 小石川店 徒歩2分
・Santoku(サントク) 茗荷谷店 徒歩5分
◇ドラッグストア
・スギ薬局 茗荷谷店 徒歩5分
・ウエルシア茗荷谷駅前店 徒歩8分
・スギ薬局 小石川1丁目店 徒歩9分
賃貸マンション【メインステージ文京小石川】
ぜひ一度お問合せくださいませ!!
2008年11月竣工!RC造11階建ての建物でございます。
窪町小学区のお部屋でございます。
~交通アクセス~
丸ノ内線 『茗荷谷』駅 徒歩10分
三田線 『白山』駅 徒歩14分
大江戸線 『春日』駅 徒歩16分
~周辺環境~
◇コンビニ
・ローソン 共同印刷本社店 徒歩1分
・セブンイレブン 文京植物園前店 徒歩2分
・セブンイレブン 文京小石川播磨坂店 徒歩5分
◇スーパー
・まいばすけっと 小石川植物園前店 徒歩1分
・肉のハナマサ 小石川店 徒歩2分
・Santoku(サントク) 茗荷谷店 徒歩5分
◇ドラッグストア
・スギ薬局 茗荷谷店 徒歩5分
・ウエルシア茗荷谷駅前店 徒歩8分
・スギ薬局 小石川1丁目店 徒歩9分
賃貸マンション【メインステージ文京小石川】
ぜひ一度お問合せくださいませ!!
掲載情報について
※随時更新を心がけておりますが、掲載している物件が万が一成約している場合もございますので予めご了承下さいませ。
※駐車場・駐輪場・バイク置場の空き状況についてはお問い合わせ下さい。
※ペット飼育やSOHO利用・楽器使用の可否に関しては、建物の管理規約で可能になっていても、お部屋の所有者様によって禁止の場合もございますので御注意下さい。
詳細はメールやお電話にてスタッフまでご相談下さい。
※駐車場・駐輪場・バイク置場の空き状況についてはお問い合わせ下さい。
※ペット飼育やSOHO利用・楽器使用の可否に関しては、建物の管理規約で可能になっていても、お部屋の所有者様によって禁止の場合もございますので御注意下さい。
詳細はメールやお電話にてスタッフまでご相談下さい。








ぜひご検討くださいませ。