パレステュディオ神楽坂の賃貸情報
09/28パレステュディオ神楽坂の賃貸情報
09/28
パレステュディオ神楽坂の総合評価
総合評価
3
3
| セキュリティ | : |
築年数 | : |
| 建物設備 | : |
駅徒歩 | : |
| セキュリティ: | |
| 建物設備: | |
| 築年数: | |
| 駅徒歩: |
この物件について
| 物件名 | パレステュディオ神楽坂 | ||
|---|---|---|---|
| 住所 | 東京都新宿区東五軒町3-15 | ||
| 最寄駅 |
東京メトロ東西線 神楽坂駅 徒歩8分 東京メトロ有楽町線 江戸川橋駅 徒歩11分 都営大江戸線 牛込神楽坂駅 徒歩11分 |
||
| 学区 | |||
| 構造 | RC | 総階数 | 地上8階建て |
| 賃料 | 管理費 | ||
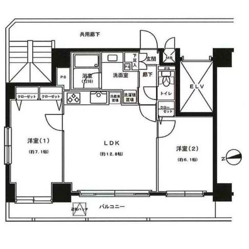
| 間取り | 面積 | ||
| 駐車場 | 築年月 | 2001年07月 | |
| 問合番号 | tm03647 | 更新日 | 2022/09/28 |
| 設備 | デザイナーズ、オートロック、宅配BOX、コンビニ近、光ファイバー、専用ゴミ置場、防犯カメラ、分譲賃貸、エレベーター、ガスキッチン、システムキッチン、エアコン、フローリング、独立洗面台、浴室乾燥、バストイレ別、室内洗濯機置場、角部屋 | ||
| 備考 | 【パレステュディオ神楽坂】の賃貸マンション情報♪ 詳細閲覧ありがとうございます。最新の空室の確認、内覧のご予約はメール・電話にてお問い合わせください。 文京区の賃貸マンション・賃貸アパートはベステックスにおまかせください! | ||
物件概要
新宿区東五軒町の高級分譲マンション【パレステュディオ神楽坂】の賃貸のご紹介です♪
【最寄駅】
東京メトロ東西線【神楽坂】駅・徒歩11分
東京メトロ有楽町線【江戸川橋】駅・徒歩13分
JR山手線【牛込神楽坂】駅・徒歩13分
☆建物設備☆
オートロック・分譲・システムキッチン・浴室乾燥機・ウォシュレット・BS・CS・防犯カメラetc..
☆2001年7月築の鉄筋コンクリート造8階建マンションです♪
☆『オートロック』『防犯カメラ』完備で学生様・女性のお客様にも安心のセキュリティです♪
☆分譲マンションならではのハイグレード仕様で新生活をサポートします♪
☆都内では貴重な閑静な住宅街に立地のマンションなので、静かな環境でのお暮らしが可能です♪
☆是非,ご内覧ください♪
【最寄駅】
東京メトロ東西線【神楽坂】駅・徒歩11分
東京メトロ有楽町線【江戸川橋】駅・徒歩13分
JR山手線【牛込神楽坂】駅・徒歩13分
☆建物設備☆
オートロック・分譲・システムキッチン・浴室乾燥機・ウォシュレット・BS・CS・防犯カメラetc..
☆2001年7月築の鉄筋コンクリート造8階建マンションです♪
☆『オートロック』『防犯カメラ』完備で学生様・女性のお客様にも安心のセキュリティです♪
☆分譲マンションならではのハイグレード仕様で新生活をサポートします♪
☆都内では貴重な閑静な住宅街に立地のマンションなので、静かな環境でのお暮らしが可能です♪
☆是非,ご内覧ください♪
掲載情報について
※随時更新を心がけておりますが、掲載している物件が万が一成約している場合もございますので予めご了承下さいませ。
※駐車場・駐輪場・バイク置場の空き状況についてはお問い合わせ下さい。
※ペット飼育やSOHO利用・楽器使用の可否に関しては、建物の管理規約で可能になっていても、お部屋の所有者様によって禁止の場合もございますので御注意下さい。
詳細はメールやお電話にてスタッフまでご相談下さい。
※駐車場・駐輪場・バイク置場の空き状況についてはお問い合わせ下さい。
※ペット飼育やSOHO利用・楽器使用の可否に関しては、建物の管理規約で可能になっていても、お部屋の所有者様によって禁止の場合もございますので御注意下さい。
詳細はメールやお電話にてスタッフまでご相談下さい。
パレステュディオ神楽坂の周辺地図
パレステュディオ神楽坂のご成約済み部屋一覧
| 所在階 | 間取り | 面積 | 賃料 | 管理費 | 敷金 | 礼金 | お問い合わせ | ||||
|---|---|---|---|---|---|---|---|---|---|---|---|
| 2階 | 2LDK | 56.95㎡ | … | … | … | … | 契約済み | 所在階*** 間取り2LDK |
面積56.95㎡ 管理費*** |
敷金*** 礼金*** |
契約済み |





